Official notices of work being carried out across Mohawk College on behalf of Facility Services. The information shared here is intended to keep students, employees, and visitors informed about scheduled maintenance, repairs, and construction activities that may impact campus spaces, access, or services.
This Week's Work
Fennell Campus (FF)
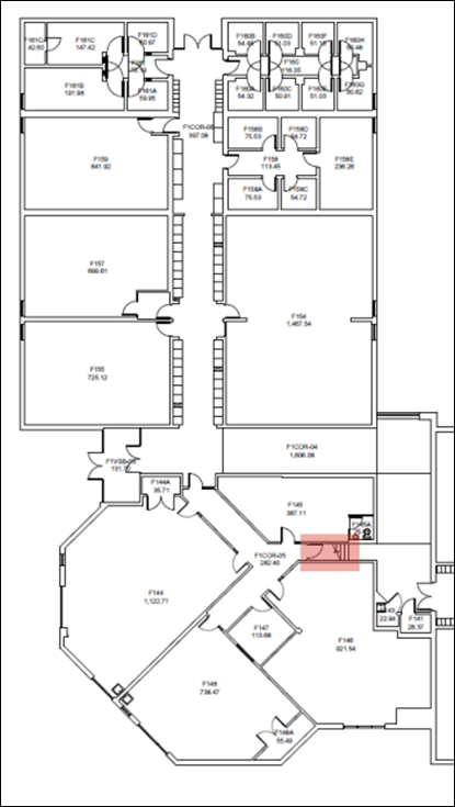
A130 / E002 / E102 – Human Care Lifts Inspections – MAY 14 – 10:00 AM to 2:00 PM
Facility Services will be undertaking a maintenance project at the Fennell Campus. This work is part of our ongoing efforts to maintain and improve campus infrastructure, safety, and functionality. Facility Services is coordinating this project in collaboration with relevant departments to ensure minimal disruption to campus operations. Updates will be provided as needed.
Project / Work Details:
Schedule:
Work will take place during:
- Date: Thursday, May 14th, 2026
- Time: 10:00 AM to 2:00 PM
Location:
- Campus: Fennell Campus
- Building/Wing: A & E wing
- Room(s): A130, E002, E102
Contractor:
- C & DC Orthomobility
Scope of Work:
The project will include the following activities:
- Inspection and maintenance on the human care devices and lifts within the Accessible washrooms. Please note that while the washrooms are being inspected, they will not be available for use. Each washroom will require one (1) hour for service to be complete. The other washrooms will be available as an alternate washroom.

Figure 1: Fennell Campus - Human Care Lifts Locations
Expected Impacts:
- Temporary access restrictions
For further information – please contact:
Paul Dalgleish – Manager, Buildings, Grounds & Housekeeping Operations
Email: paul.dalgleish [at] mohawkcollege.ca (paul[dot]dalgleish[at]mohawkcollege[dot]ca)
C235 and F003p – Universal Washroom AODA Upgrades – MAY 12 to MAY 15 / MAY 19 – 7:00 AM to 3:00 PM
Facility Services will be undertaking an AODA upgrade at the Fennell Campus. This work is part of our ongoing efforts to maintain and improve campus infrastructure, safety, and functionality. Facility Services is coordinating this project in collaboration with relevant departments to ensure minimal disruption to campus operations. Updates will be provided as needed.
Project / Work Details
Schedule
Work will take place during:
- Dates:
- Tuesday, May 12th, 2026 to Friday, May 15th, 2026
- Tuesday, May 19th, 2026
- Time: 7:00 AM to 3:00 PM
Location
- Campus: Fennell Campus
- Building/Wing: C-Wing and F-Wing
- Rooms:
- C235 Universal Washroom
- F003p Universal Washroom
Contractor
- Britt Drywall
Scope of Work
The project will include the following activities:
- Scope varies in each washroom; includes installing plywood backing within the walls to support the installation of AODA grab bars and various accessories.
Expected Impacts
- Some noise at times throughout the day, but will be kept to a minimum when adjacent classes are scheduled
- General construction activity
- Washrooms will be closed
Additional Safety or Access Information
- Only authorized personnel are permitted within construction zones
For further information - please contact:
Jeremy Dowling – Engineering Services Officer
Email: jeremy.dowling [at] mohawkcollege.ca (jeremy[dot]dowling[at]mohawkcollege[dot]ca)
C060 / Tim Hortons Lower Level / G002 / Mo's Restaurant – Hood Vent Cleaning – MAY 14 to MAY 17 – 9:00 PM to 4:00 AM
Facilities Services on behalf of Business Services will be undertaking a maintenance project at the Fennell Campus. This work is part of our ongoing efforts to maintain and improve campus infrastructure, safety, and functionality. Facility Services is coordinating this project in collaboration with relevant departments to ensure minimal disruption to campus operations. Updates will be provided as needed.
Project / Work Details:
Schedule:
Work will take place during:
- Dates: Wednesday, May 13th, 2026 – Thursday, May 14th, 2026
- Time: 9:00 PM to 5:00 AM
Location:
- Campus: Fennell Campus
- Building/Wing: C-Wing, G-Wing , Residence
- Rooms: C060, Tim Hortons lower level, G002, Mo’s Restaurant in Residence
Contractor:
- GoFilta
Scope of Work:
The project will include the following activities:
- Go Filta will be on site cleaning hood vents in the identified areas. Contractors will be moving through the corridors accessing the spaces.
For further information – please contact:
Sandi Frank – Operations Specialist, Business Services
Email: sandi.frank [at] mohawkcollege.ca (sandi[dot]frank[at]mohawkcollege[dot]ca)
Long‑term planned work
E303 – Corridor Hoarding & Asbestos Remediation Project – FEB 05 to MAY 29
Facility Services is providing an updated notice of work scheduled to occur in E‑Wing, 3rd Floor, at the Fennell Campus.
Project Schedule: Tuesday, January 27th, 2026 to Friday, May 29th, 2026
- Thursday, February 5th,2026 to Friday, May 29th, 2026 (evening work in Lab E203 to support E303 Lab work)
- Thursday, February 12th, 2026 - Early morning gas service shut down to the second and third floor of E-Wing. Shut down will be performed from 6:00 AM to 7:00 AM. If any dept. has issues with a gas appliance after this work is completed, please reach out to me and I will have our contractors assist in re-lighting your equipment. Thank you for your understanding
- Primary Contractor:
- General Contractors: Ritestart (Key Holder)
- Sub Contractors:
- Mic Mechanical (HVAC)
- Jen-Tech (Electrical)
- Site-Pro (Demolition / Asbestos)
Location: Fennell Campus: E-Wing – Room E303
Description of Work: The contractor will be installing corridor hoarding to protect staff and students from the construction area. There will also be asbestos testing and remediation in the space.
Contractors have received schedules for neighboring classrooms and have been instructed that all disruptive or noisy work must be completed during evening hours and coordinated around the schedules of classrooms E203, E304, and E305.
For further information – please contact:
Tom Ziemkiewicz – Project Manager, Engineering Services
Email: thomas.ziemkiewicz1 [at] mohawkcollege.ca (thomas[dot]ziemkiewicz1[at]mohawkcollege[dot]ca)
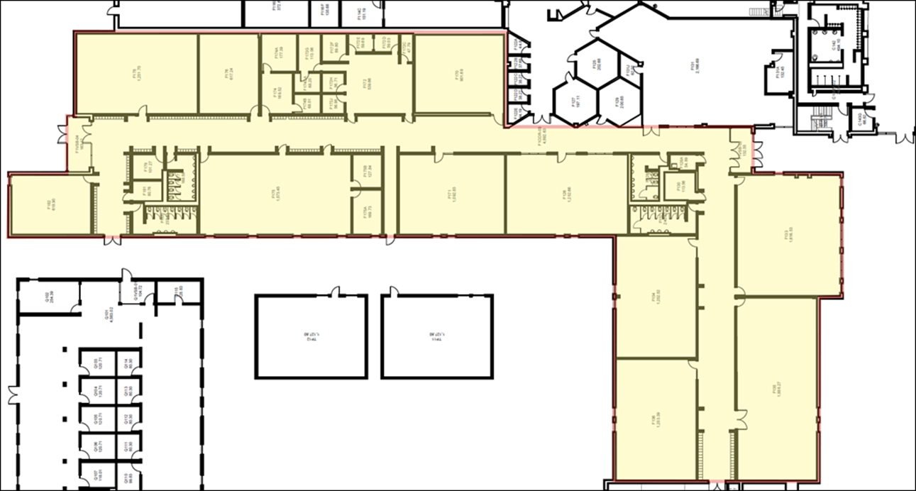
F-Wing – Roof System Replacement Project – APR 20 to AUG 28
Facility Services is providing notice of scheduled construction work that will take place at the Fennell Campus.
Project Details:
Schedule:
- Dates: Monday, April 20th, 2026 to Friday, August 28th, 2026
- Time: 6:00 AM to 7:00 PM (weather permitting)
Contractor:
- Provincial Industrial Roofing and Sheet Metal Inc.
Location:
- Campus: Fennell Campus
- Building/Wings: F-Wing
- Rooms: The following rooms in F-Wing will be impacted during construction:
- F126, F128A, F130, F132–F136, F170, F171, F172 (C, D, E, F, G, H, J), F174 (A, B, GA), F175 (A, B), F176–F183.
Scope of Work:
The project involves the complete replacement of the existing roofing system down to the metal deck.
Additional Information:
- The designated setup area for disposal bins will be located on the east side of the roof, adjacent to the short-term parking lot.
- Occupants should anticipate noticeable noise and vibration in classrooms located beneath active work areas.
Project Area Overview :

Figure 1: Yellow – Replacement Area & Red – Setup Area

Figure 2: Fennell Campus F-Wing Overview of room below roof replacement work
For further information – please contact:
Sloan Alessandro – Project Manager, Construction Engineering Services
Email: sloan.alessandro [at] mohawkcollege.ca (sloan[dot]alessandro[at]mohawkcollege[dot]ca)
H-Wing – Stair Replacement Project – MAY 06 to AUG 28
Facility Services will be undertaking a construction project at the Fennell Campus. This work is part of our ongoing efforts to maintain and improve campus infrastructure, safety, and functionality. Facility Services is coordinating this project in collaboration with relevant departments to ensure minimal disruption to campus operations. Updates will be provided as needed.
Project / Work Details:
Schedule:
Work will take place during:
- Dates: Wednesday, May 6th, 2026 – Friday, August 28th, 2026
- Time: 7:00 AM – 5:00 PM
Location:
- Campus: Fennell Campus
- Building/Wing: H-Wing
- Room: Exterior East Entrance
Contractor:
- Primary Contractor: Century Group
- Subcontractor: To be determined
Scope of Work:
The project will include the following activities:
- Complete removal and replacement of the existing ramp and stairs.
- All existing concrete, blocks, retaining wall, stairs, etc. will be removed and replaced.
Expected Impacts:
- Closures:
- Access from Fennell Ave. between A-Wing and H-Wing will be closed.
- Exits 63 and 64 from the H-Wing to the courtyard will be closed.
- Hoop Dance area will be closed for the duration of the project.
- The Learning Support Centre (C122) will be closed and relocated to H101b.
- Noise
- General construction activity will cause noise in the adjacent areas.
- Increased traffic at the Fennell Ave. drop off location.
Additional Safety or Access Information:
- Work areas will be clearly marked and secured with fencing.
- Only authorized personnel are permitted within construction zones.
- Please follow all posted signage and directions from staff or contractors.

Figure 1: Fennell Campus - H-Wing - Area of Work
For further information – please contact:
Sloan Alessandro – Project Manager
Email: sloan.alessandro [at] mohawkcollege.ca (sloan[dot]alessandro[at]mohawkcollege[dot]ca)
Stoney Creek Campus (SC)
A100 & A126A – Hood Vent Cleaning – MAY 13 & MAY 14 – 9:00 PM to 5:00 AM
Facilities Services on behalf of Business Services will be undertaking a maintenance project at the Stoney Creek Campus. This work is part of our ongoing efforts to maintain and improve campus infrastructure, safety, and functionality. Facility Services is coordinating this project in collaboration with relevant departments to ensure minimal disruption to campus operations. Updates will be provided as needed.
Project / Work Details:
Schedule:
Work will take place during:
- Dates: Wednesday, May 13th, 2026 – Thursday, May 14th, 2026
- Time: 9:00 PM to 5:00 AM
Location:
- Campus: Stoney Creek
- Building/Wing: A-Wing
- Rooms: A100 (Tim Hortons) & A126A (main kitchen)
Contractor:
- GoFilta
Scope of Work:
The project will include the following activities:
- Go Filta will be on site cleaning hood vents in the identified areas. Contractors will be moving through the corridors accessing the spaces.
For further information – please contact:
Sandi Frank – Operations Specialist, Business Services
Email: sandi.frank [at] mohawkcollege.ca (sandi[dot]frank[at]mohawkcollege[dot]ca)
D105 Corridor – Plumbing Repair – MAY 14 – 6:00 AM to 12:00 PM
Facility Services will be undertaking a plumbing repair at the Stoney Creek Campus. This work is part of our ongoing efforts to maintain and improve campus infrastructure, safety, and functionality. Facility Services is coordinating this project in collaboration with relevant departments to ensure minimal disruption to campus operations. Updates will be provided as needed.
Project / Work Details:
Schedule:
Work will take place during:
- Date: Thursday, May 14th, 2026
- Time: 6:00 AM to 12:00 PM
Location:
- Campus: Stoney Creek Campus
- Building/Wing: D-Wing
- Rooms: Corridor outside D105
Contractor:
- Mattina Mechanical
Scope of Work:
The project will include the following activities:
- The contractor will be chipping out the concrete floor around a plumbing clean-out and installing a new clean-out to the finished floor height.
- A pylon will be installed overtop until the flooring is repaired.
Expected Impacts:
- The noisy work will be completed between 6:00 AM and 7:00 AM before classes start
- General construction activity
For further information - please contact:
Jeremy Dowling – Engineering Services Officer
Email: jeremy.dowling [at] mohawkcollege.ca (jeremy[dot]dowling[at]mohawkcollege[dot]ca)
Institute of Applied Health Sciences (IAHS)
There is no scheduled work during this period.
Centre for Aviation Technology at Hamilton International Airport (HA)
There is no scheduled work during this period.
Upcoming Work
Fennell Campus (FF)
DBARC – Light Pole Removal & Entrance Closure – MAY 21 – 7:00 AM to 4:00 PM
Facility Services will be undertaking light pole removal work at the Fennell Campus. This work is part of our ongoing efforts to maintain and improve campus infrastructure, safety, and functionality. Facility Services is coordinating this project in collaboration with relevant departments to ensure minimal disruption to campus operations. Updates will be provided as needed.
Project / Work Details:
Schedule:
Work will take place during:
- Dates: Thursday, May 21st, 2026
- Time: 7:00 AM to 4:00 PM
Location:
- Campus: Fennell Campus
- Area: In front of DBARC / Governors Blvd entrance
Contractor:
- L.J. Barton Mechanical Inc
Scope of Work:
The project will include the following activities:
- Removal of existing exterior light poles
- Use of crane and related equipment for pole removal operations
Expected Impacts:
- Closure of the entrance off Fennell Avenue and Governors Road at MSA
- Traffic will be redirected to access campus via:
- West 5th Street
- Alumni House entrance
- Presence of crane, pylons, and caution tape in the work zone
- General construction and traffic disruptions in the immediate area

Figure 1: Fennell Campus - Alternate Entrance Locations
For further information – please contact:
Paul Dalgleish – Manager, Buildings, Grounds & Housekeeping Operations
Email: paul.dalgleish [at] mohawkcollege.ca (paul[dot]dalgleish[at]mohawkcollege[dot]ca)
I-Wing – AODA Whiteboard – MAY 26 – 6:00 AM to 12:00 PM
Facility Services will be undertaking an AODA upgrade at the Fennell Campus. This work is part of our ongoing efforts to maintain and improve campus infrastructure, safety, and functionality. Facility Services is coordinating this project in collaboration with relevant departments to ensure minimal disruption to campus operations. Updates will be provided as needed.
Project / Work Details:
Schedule:
Work will take place during:
- Dates: Tuesday, May 26th, 2026
- Time: 6:00 AM to 12:00 PM
Location:
- Campus: Fennell Campus
- Building/Wing: i-Wing
- Rooms: i104, i106, i109, i112, i125, i126, i206, i216, i219, i224 and i228
Contractor:
- Britt Drywall
Scope of Work:
The project will include the following activities:
- Installation of additional or lowering existing whiteboards mounted at AODA height
Expected Impacts:
- The noisy installations into block or concrete will be completed between 6:00 AM to 7:30 AM before classes start
- The less noisy installations into drywall will be completed after 7:30 AM
- General construction activity
For further information - please contact:
Jeremy Dowling – Engineering Services Officer
Email: jeremy.dowling [at] mohawkcollege.ca (jeremy[dot]dowling[at]mohawkcollege[dot]ca)
C-Wing and E-Wing – Sanitary Pits Cleaning – JUN 05 – 8:00 AM to 5:00 PM
Facility Services will be undertaking a maintenance project at the Fennell Campus. This work is part of our ongoing efforts to maintain and improve campus infrastructure, safety, and functionality. Facility Services is coordinating this project in collaboration with relevant departments to ensure minimal disruption to campus operations. Updates will be provided as needed.
Project / Work Details:
Schedule:
Work will take place during:
- Date: Friday, June 5th, 2026
- Time: 8:00 AM to 5:00 PM
Location:
- Campus: Fennell Campus
- Building/Wing: C-Wing and E-Wing
- Room(s): C002, C039, C079, E030d
Contractor:
- W.M. Groves
Scope of Work:
The project will include the following activities:
W.M. Groves will be on site on Friday, June 5th at 8:00 AM to perform the cleaning of sanitary pits across Campus. This includes C002, C039, C079, and E030d. The contractors will be parked outside with hoses running in the building.
There will be some slight odours in the immediate areas of the cleaning, but will dissipate throughout the day.
Expected Impacts:
- Noise
- Odours
- Temporary access restrictions
- Increased contractors' presence in the area
Additional Safety or Access Information:
- Work areas will be clearly marked and secured
- Only authorized personnel are permitted within construction zones
- Be careful around hoses on the ground
For further information – please contact:
Paul Dalgleish – Manager, Buildings, Grounds & Housekeeping Operations
Email: paul.dalgleish [at] mohawkcollege.ca (paul[dot]dalgleish[at]mohawkcollege[dot]ca)
Stoney Creek Campus (SC)
SC – Electrical Upgrade Project – MAY 21 – 10:00 PM to 12:00 AM
Facility Services will be undertaking an electrical upgrade project at the Stoney Creek Campus. This work is part of our ongoing efforts to maintain and improve campus infrastructure, safety, and functionality. Facility Services is coordinating this project in collaboration with relevant departments to ensure minimal disruption to campus operations. Updates will be provided as needed.
Project / Work Details:
Schedule:
Work will take place during:
- Dates: Thursday, May 21st, 2026
- Time: 10:00 PM – 12:00 AM
Location:
- Campus: Stoney Creek Campus
Contractor:
- Primary Contractor: Cahill Electric Inc.
- Subcontractor: EPI Fire Protection
Scope of Work:
The project will include the following activities:
- Verification of fire alarm devices impacted by the ongoing electrical improvements.
Expected Impacts:
- The fire alarm system will be on test.
- There may be PA announcements.
- The fire alarm may sound intermittently during the testing & verification process
For further information – please contact:
Jim Davidson – Project Manager, Construction / Electrical
Email: james.davidson10 [at] mohawkcollege.ca (james[dot]davidson10[at]mohawkcollege[dot]ca)
Institute of Applied Health Sciences (IAHS)
There is no scheduled work during this period.
Centre for Aviation Technology at Hamilton International Airport (HA)
There is no scheduled work during this period.
Archived Notices
Fennell Campus (FF)
MAY 2026
B103 & B105 – Gas Detection Equipment Installation – MAY 09
Facilities Management will be undertaking an upgrade project at the Fennell Campus. This work is part of our ongoing efforts to maintain and improve campus infrastructure, safety, and functionality. Facilities Management is coordinating this project in collaboration with relevant departments to ensure minimal disruption to campus operations. Updates will be provided as needed.
Project / Work Details:
Schedule:
Work will take place during:
- Date: Saturday, May 9, 2026
- Time: 7 am to 5 pm
Location:
- Campus: Fennell Campus
- Building/Wing: B-Wing
- Room(s): B103 and B105
Contractor:
- Primary Contractor: O’Keefe Electrical
- Subcontractor: Lancaster Group
Scope of Work:
The project will include the following activities:
- Commissioning for Gas Detection Equipment
- Briefly testing for Gas Detection Equipment functionality, including Horns and Strobes
Expected Impacts:
- Noise – Brief audible indicator in and around B103 and B105
- Strobe – Brief flashing indicator in and around B103 and B105
Additional Safety or Access Information:
- Please follow all posted signage and directions from staff or contractors
For further information – please contact:
Patrick Belina – Project Manager, Construction and Renovation
Email: patrick.belina [at] mohawkcollege.ca (patrick[dot]belina[at]mohawkcollege[dot]ca)
B102E – Window Replacement – MAY 07
Facilities Management will be undertaking a maintenance repair project at the Fennell Campus. This work is part of our ongoing efforts to maintain and improve campus infrastructure, safety, and functionality. Facilities Management is coordinating this project in collaboration with relevant departments to ensure minimal disruption to campus operations. Updates will be provided as needed.
Project / Work Details:
Schedule:
Work will take place during:
- Date: Thursday, May 7th, 2026
- Time: 9:30 AM to 4:30 PM
Location:
- Campus: Fennell Campus
- Building/Wing: B-Wing
- Room: B102E Vehicle Shed
Contractor:
- Primary Contractor: Barton Glass
Scope of Work:
The project will include the following activities:
- Replacement of an existing window in the B102E vehicle shed.
Expected Impacts:
- Short‑term noise during window removal and installation.
- Minor dust or debris in the immediate work area.
- Temporary disruption to access near the affected section of the vehicle shed while work is underway.
Additional Safety or Access Information:
- Work is scheduled to begin today at 11:00 AM.
- The work area will be cordoned off as required for safety.
For more information please contact:
Paul Dalgleish – Manager, Buildings, Grounds and Housekeeping Operations
Email: paul.dalgleish [at] mohawkcollege.ca (paul[dot]dalgleish[at]mohawkcollege[dot]ca)
C114 – Seat Removal – MAY 06 to MAY 07
Facilities Management will be undertaking a classroom upgrade at the Fennell Campus. This work is part of our ongoing efforts to maintain and improve campus infrastructure, safety, and functionality. Facilities Management is coordinating this project in collaboration with relevant departments to ensure minimal disruption to campus operations. Updates will be provided as needed.
Project / Work Details:
Schedule:
Work will take place during:
- Date: Wednesday, May 6, 2026 and Thursday, May 7, 2026
- Time: 7 am to 3 pm
Location:
- Campus: Fennell Campus
- Building/Wing: C-Wing
- Room: C114
Contractor:
- Britt Drywall
Scope of Work:
The project will include the following activities:
- Removal of fixed seats and replacement with movable chairs.
Expected Impacts:
- Noisy at times throughout the day with grinding
- General construction activity as they will be in and out of the room with disposing of materials
- Temporary access restrictions
Additional Safety or Access Information:
Only authorized personnel are permitted within construction zones
For further information – please contact:
Jeremy Dowling – Engineering Services Officer
Email: jeremy.dowling [at] mohawkcollege.ca (jeremy[dot]dowling[at]mohawkcollege[dot]ca)
APRIL 2026
FF – Overhead Door Annual Inspection – APR 27 & APR 28
Facilities Management will be undertaking a maintenance project at Fennell & Stoney Creek Campus. This work is part of our ongoing efforts to maintain and improve campus infrastructure, safety, and functionality. Facilities Management is coordinating this project in collaboration with relevant departments to ensure minimal disruption to campus operations. Updates will be provided as needed.
Project / Work Details:
Schedule:
Fennell Campus
- Dates: Monday, April 27th, 2026 & Tuesday, April 28th, 2026
- Time: 8:30 AM to 4:00 PM
Stoney Creek
- Dates: Wednesday, April 29th, 2026 & Thursday, April 30th, 2026
- Time: 8:30 AM to 4:00 PM
Location:
- Campus: Fennell & Stoney Creek Campuses
- Building/Wing: All buildings and wings
Contractor:
- O’Brien’s Solutions
Scope of Work:
The project will include the following activities:
- Overhead Door annual inspection
Expected Impacts:
- Noise
- General construction activity
- Temporary access restrictions
- Inability to use overhead door while inspection is taking place
- Increased contractors' presence in the area
For more information, please contact:
Paul Dalgleish – Manager, Buildings, Grounds and Housekeeping Operations
Email: paul.dalgleish [at] mohawkcollege.ca (paul[dot]dalgleish[at]mohawkcollege[dot]ca)
FF – Roof Anchor Inspections – APR 30
Facilities Management will be undertaking a maintenance project at the Fennell and Stoney Creek Campus. This work is part of our ongoing efforts to maintain and improve campus infrastructure, safety, and functionality. Facilities Management is coordinating this project in collaboration with relevant departments to ensure minimal disruption to campus operations. Updates will be provided as needed.
Project / Work Details:
Schedule:
Work will take place during:
- Date: Thursday, April 30th, 2026
- Time: 7:00 AM to 4:30 PM
Location:
- Campus: Fennell & Stoney Creek
- Building/Wing: Fennell – Roof and H-Wing / Stoney Creek - Roof
Contractor:
- Primary Contractor: Roque Roofing
- Subcontractor: Anchorpoint Inspections
Scope of Work:
The project will include the following activities:
- Anchorpoints will be at Mohawk College performing roof anchor inspections.
Expected Impacts:
- No disruption is expected as all work will be on the roof, and a visual inspection in H-Wing.
Additional Safety or Access Information:
- Only authorized personnel are permitted within construction zones
For more information, please contact:
Paul Dalgleish – Manager, Buildings, Grounds and Housekeeping Operations
Email: paul.dalgleish [at] mohawkcollege.ca (paul[dot]dalgleish[at]mohawkcollege[dot]ca)
C102 Area – Foyer Tile Repair – APR 27
Facilities Management will be undertaking an upgrade project at the Fennell Campus. This work is part of our ongoing efforts to maintain and improve campus infrastructure, safety, and functionality. Facilities Management is coordinating this project in collaboration with relevant departments to ensure minimal disruption to campus operations. Updates will be provided as needed.
Project / Work Details:
Schedule:
Work will take place during:
- Date: Monday, April 27th, 2026
- Time: 7:00 AM to 5:00 PM
Location:
- Campus: Fennell Campus
- Building/Wing: C-Wing
- Room(s): Corridor in front of C102
Contractor:
- Mario's Tile and Interiors
- Subcontractor(s): N/A
Scope of Work:
The project will include the following activities:
- Removing damaged tiles in front of the Registrar's Office and installing new tiles.
Expected Impacts:
- Noise – Construction noise will begin promptly at 7:00 AM, with the highest levels occurring at the start of daily activities.
- Dust – Dust generation is expected to begin at 7:00 AM, particularly during initial site preparation and material handling.
- General construction activity
Additional Safety or Access Information:
- Please follow all posted signage and directions from staff or contractors
For further information – please contact:
Patrick Belina – Project Manager – Construction and Renovations
Email: patrick.belina [at] mohawkcollege.ca (patrick[dot]belina[at]mohawkcollege[dot]ca)
C102 Area – Foyer Tile Repair – APR 29
Facilities Management will be undertaking an upgrade project at the Fennell Campus. This work is part of our ongoing efforts to maintain and improve campus infrastructure, safety, and functionality. Facilities Management is coordinating this project in collaboration with relevant departments to ensure minimal disruption to campus operations. Updates will be provided as needed.
Project / Work Details:
Schedule:
Work will take place during:
- Date: Wednesday, April 29th, 2026
- Time: 4:30 PM to 10:00 PM
Location:
- Campus: Fennell Campus
- Building/Wing: C-Wing
- Room(s): Corridor in front of C102
Contractor:
- O'Keefe Electrical
Scope of Work:
The project will include the following activities:
• Rerouting the electrical for the Registrar's Welcome desk
• Relocating the Registrar's Welcome desk
Expected Impacts:
- General construction activity
For further information – please contact:
Patrick Belina – Project Manager – Construction and Renovations
Email: patrick.belina [at] mohawkcollege.ca (patrick[dot]belina[at]mohawkcollege[dot]ca)
Parking Lot P1/P2/P7/P8 – Limited Mobility and Caregiver Parking Spaces – APR 30
Facilities Management will be undertaking an AODA upgrade at the Fennell Campus. This work is part of our ongoing efforts to maintain and improve campus infrastructure, safety, and functionality. Facilities Management is coordinating this project in collaboration with relevant departments to ensure minimal disruption to campus operations. Updates will be provided as needed.
Project / Work Details:
Schedule:
Work will take place during:
- Date: Thursday, April 30th, 2026
- Time: 10:00 PM to 6:00 AM
Location:
- Campus: Fennell Campus
- Building/Wing: Exterior – Parking Lots P1, P3, P7 and P8
- Room(s): N/A
Contractor:
- Primary Contractor: Rankin Construction
- Subcontractor: Line Em Up
Scope of Work:
The project will include the following activities:
- Painting an AODA symbol on the asphalt for the Limited Mobility and Caregiver spaces in the following areas:
- P1: 2 spaces just adjacent to the motorcycle pad
- P3: 2 spaces south of the Data Centre
- P7: 3 spaces west of the accessible parking
- P8: 3 spaces north of the R-Wing

Figure 1: Fennell Campus – Parking Lots P1 and P3

Figure 2: Fennell Campus – Parking Lots P7 and P8
Expected Impacts:
The identified spaces will not be available for a short period of time as they work on each one.
For further information – please contact:
Jeremy Dowling – Engineering Services Officer
Email: jeremy.dowling [at] mohawkcollege.ca (jeremy[dot]dowling[at]mohawkcollege[dot]ca)
B103 & B105 – Gas Detection Equipment Installation – APR 20
Facilities Management will be undertaking an upgrade project at the Fennell Campus. This work is part of our ongoing efforts to maintain and improve campus infrastructure, safety, and functionality. Facilities Management is coordinating this project in collaboration with relevant departments to ensure minimal disruption to campus operations. Updates will be provided as needed.
Project / Work Details:
Schedule:
Work will take place during:
- Date(s): Monday, April 20th, 2026
- Time: 4:00 PM to 10:00 PM
Location:
- Campus: Fennell Campus
- Building/Wing: B-Wing
- Room(s): B103 and B105
Contractor:
- Primary Contractor: O’Keefe Electrical
- Subcontractor(s): None
Scope of Work:
The project will include the following activities:
- Terminations for Gas Detection Equipment
- Briefly testing for Gas Detection Equipment functionality, including Horns and Strobes
Expected Impacts:
- Noise – Brief audible indicator in and around B103 and B105
- Strobe – Brief flashing indicator in and around B103 and B105
Additional Safety or Access Information:
- Please follow all posted signage and directions from staff or contractors
For further information – please contact:
Patrick Belina – Project Manager, Construction and Renovation
Email: patrick.belina [at] mohawkcollege.ca (patrick[dot]belina[at]mohawkcollege[dot]ca)
C102 – Electrical Work – APR 20
Facility Services is providing notice of work that will be occurring at the Fennell Campus:
Monday, April 20th, 2026 – 4:30 PM to 10:00 PM
Contractor: O'Keefe Electrical
Location: Fennell Campus: C102 Foyer, Around the Registrar's Desk
Description of Work: The contractor will be rerouting the existing electrical and data conduits around the Registrar’s Desk.
For further information – please contact:
Patrick Belina – Project Manager – Construction and Renovations
Email: patrick.belina [at] mohawkcollege.ca (patrick[dot]belina[at]mohawkcollege[dot]ca)
E-Wing – Crane Work for E-Wing Biolabs – APR 20 & APR 21
Facilities Management will be undertaking a construction project at the Fennell Campus. This work is part of our ongoing efforts to maintain and improve campus infrastructure, safety, and functionality. Facilities Management is coordinating this project in collaboration with relevant departments to ensure minimal disruption to campus operations. Updates will be provided as needed.
Project / Work Details:
Schedule:
Work will take place during:
- Date(s): Monday, April 20th,2026 – Tuesday, April 21st, 2026
Time: 7:00 AM to 4:00 PM
Location:
- Campus: Fennell Campus
- Building/Wing: E-Wing
- Room(s): N/A
Additional Area: Ramp leading to E-Wing, West side of campus.
Contractor:
- Primary Contractor: Ritestart Ltd.
Subcontractor(s): Ultimate metal fab & install
Scope of Work:
The project will include the following activities:
- The contractor will be performing overhead crane work to support the installation of a new RTU for E-Wing Biolabs project.
- Work includes installation of a steel platform for the new proposed RTU also included in this work.
- Traffic control measures, including flag persons directing vehicles to allow safe access to the compound
- Use of large trucks accessing the west entrance near E-Wing
Expected Impacts:
- Noise
- Dust
- Odours
- General construction activity
- Temporary access restrictions
- Detours
- Increased contractors' presence in the area
Additional Safety or Access Information:
- Work areas will be clearly marked and secured
- Only authorized personnel are permitted within construction zones
- Please follow all posted signage and directions from staff or contractors

Figure 1: Crane location and indication of primary exits not in use.
For further information – please contact:
Tom Ziemkiewicz – Project Manager – Engineering Services
Email: thomas.ziemkiewicz1 [at] mohawkcollege.ca (thomas[dot]ziemkiewicz1[at]mohawkcollege[dot]ca)
F-Wing – Roof Guardrail Installation – APR 20 - APR 21
Facilities Management will be undertaking a maintenance project at the Fennell Campus. This work is part of our ongoing efforts to maintain and improve campus infrastructure, safety, and functionality. Facilities Management is coordinating this project in collaboration with relevant departments to ensure minimal disruption to campus operations. Updates will be provided as needed.
Project / Work Details:
Schedule:
Work will take place during:
- Date(s): Monday, April 20th, 2026 – Tuesday, April 21st, 2026
- Time: 7:00 AM to 5:00 PM
Location:
- Campus: Fennell Campus
- Building/Wing: F-Wing
- Room(s): N/A
- Additional Area: South Entrance Drive Path
Contractor:
- Primary Contractor: Provincial Roofing
- Subcontractor(s): N/A
Scope of Work:
The project will include the following activities:
- Installation of rooftop guard railings (Monday), which is expected to generate noise from drilling and fastening
- Lifting and staging of equipment and materials to roof areas (Tuesday)
- Use of large trucks accessing the south entrance drop‑off area to back into the construction compound
- Forklift‑type vehicles travelling between trucks and trailers staged in nearby parking lots
- Traffic control measures, including flag persons directing vehicles to allow safe access to the compound
The majority of truck traffic is expected to occur between 7:00 AM and 10:00 AM.

Figure 1: Construction compound location and truck traffic in the area.
Expected Impacts:
- Noise from drilling and fastening activities
- General construction activity
- Increased contractor and construction vehicle presence
- Temporary access restrictions in the south entrance drive path area
- Detours and traffic disruptions
- Construction vehicles may temporarily travel opposite to one‑way traffic patterns to safely access the construction compound
Additional Safety or Access Information:
- Work areas will be clearly marked and secured
- Only authorized personnel are permitted within construction zones
- Flag persons will be present to direct traffic
- Please follow all posted signage and directions from staff or contractors
- Construction vehicles may temporarily reroute traffic to maintain safe access to the compound
For further information – please contact:
Sloan Alessandro – Project Manager, Construction Engineering Services
Email: sloan.alessandro [at] mohawkcollege.ca (sloan[dot]alessandro[at]mohawkcollege[dot]ca)
E-Wing 2nd and 3rd Floor – Scanning – APR 15
Facility Services is providing notice of work that will be occurring at the Fennell Campus:
Wednesday, April 15th, 2026 – 9:30 PM to 5:00 AM
Contractor: Ritestart Ltd.
Location: Fennell Campus: E-Wing – E303
Description of Work: The contractor will be performing an X-ray scan of the column caps in E303. During this work, external forces will have the second and third floor between stairwell K and L. During that time both the 2nd and 3rd floors between those exit points will be inaccessible to everyone. No personnel will be permitted in that area due to the nature of X-ray scanning.
EA-Wing and the rest of E-Wing (not noted) will remain accessible.
For further information – please contact:
Tom Ziemkiewicz – Project Manager – Engineering Services
Email: thomas.ziemkiewicz1 [at] mohawkcollege.ca (thomas[dot]ziemkiewicz1[at]mohawkcollege[dot]ca)
A/B/C/J-Wings – Building Condition Assessments – APR 13 to APR 17
Facility Services is providing notice of work that will be occurring at the Fennell Campus and Stoney Creek Campus:
Monday, April 13th, 2026 to Friday, April 17th, 2026 - 8:00 AM – 5:00 PM
Contractor: Roth Iams
Location: Fennell Campus and Stoney Creek Campus
Schedule:
- Monday, April 13th, 2026 – Fennell Campus – A-Wing
- Tuesday, April 14th, 2026 – Fennell Campus – B-Wing
- Tuesday, April 14th, 2026 – Stoney Creek Campus – G-Wing
- Wednesday, April 15th, 2026 – Fennell Campus – C-Wing
- Thursday, April 16th, 2026 – Fennell Campus – C-Wing
- Friday, April 17th, 2026 – Fennell Campus – J-Wing
Description of Work: The consultants will be completing a visual review on building components, mechanical equipment, and electrical systems within the areas listed above. This work is part of a building condition assessment to evaluate the current state of the building infrastructure.
Consultants will be entering and exiting rooms within these wings as required. There will be no interruption to scheduled classes or exams. All consultants will be accompanied by Facility Services staff.
For further information – please contact:
Domenic Grandoni – Engineering Services Officer
Email: domenic.grandoni1 [at] mohawkcollege.ca (domenic[dot]grandoni1[at]mohawkcollege[dot]ca)
EA-Wing & R-Wing – Scheduled Generator Testing & Servicing – APR 08
Facility Services is providing a notice of work that will be occurring at the Fennell Campus:
Wednesday, April 8th, 2026 – 4:30 AM to 6:00 AM
Contractor: Total Power
Location: Fennell Campus – EA-Wing & R-Wing
Description of Work: Total Power will be on site performing generator testing. During this test, power will be briefly turned off, impacting any computers that are on. Please ensure all work is saved and computers are turned off.
For more information please contact:
Paul Dalgleish – Manager, Buildings, Grounds and Housekeeping Operations
Email: paul.dalgleish [at] mohawkcollege.ca (paul[dot]dalgleish[at]mohawkcollege[dot]ca)
C-Wing – AODA Tactile Warning Floor Inserts – APR 03
Facility Services is providing notice of work that will be occurring at the Fennell Campus:
Friday, April 3rd, 2026 – 8:00 AM to 12:00 PM
***Security, please allow the contractor to start earlier or finish later as required to complete their work***
Contractor: Mario’s Tile and Interiors
Location: Fennell Campus: C-Wing – Stair I leading to the 2nd floor
Description of Work: The contractor will be installing AODA tactile warning floor inserts at the top of the stairs.

Figure 1: Fennell Campus - C-Wing Stair I
For further information – please contact:
Jeremy Dowling – Engineering Services Officer
Email: jeremy.dowling [at] mohawkcollege.ca (jeremy[dot]dowling[at]mohawkcollege[dot]ca)
MARCH 2026
Entire Campus – Scheduled Generator Testing & Servicing – MAR 25 to APR 01
Facility Services is providing an updated notice of work that will be occurring at the Fennell Campus:
Original Schedule:
· Wednesday, March 25th, 2026 – 4:30 AM to 2:00 PM
· Thursday, March 26th, 2026 – 4:30 AM to 2:00 PM
· Friday, March 27th, 2026 – 4:30 AM to 2:00 PM – CANCELLED
Revised Schedule:
· Wednesday, April 1st, 2026 – 4:30 AM to 2:00 PM
Contractor: Total Power
Location: Fennell Campus – Entire Campus
Description of Work: Total Power will be on site for three (3) days to perform testing and servicing on the backup generators for Fennell Campus.
Morning work will involve brief power interruptions. For this reason, please ensure that any devices not protected by a UPS (Uninterruptible Power Supply) are safely powered down in advance.
All work that may interrupt power will be completed before 6:00 AM.
During this period, you may hear generators operating across campus, including on the rooftops of A, E, EA, and R-Wings. If you are hosting academic testing or activities that may be affected by this work, please contact maintenance [at] mohawkcollege.ca (subject: Generator%20Testing%20-%20Accommodations%20Request) (maintenance) to discuss accommodations.
We appreciate your patience and cooperation. All work is scheduled to be completed by Wednesday, April 1st, 2026.
For more information please contact:
Paul Dalgleish – Manager, Buildings, Grounds and Housekeeping Operations
Email: paul.dalgleish [at] mohawkcollege.ca (paul[dot]dalgleish[at]mohawkcollege[dot]ca)
Fennell Campus – Exterior – Directional Four-Way Stop Signage – MAR 27
Facility Services is providing notice of work that will be occurring at the Fennell Campus:
Friday, March 27th, 2026 – 9:00 AM to 2:00 PM
Contractor: Branditt Inc.
Location: Fennell Campus – Exterior, by four-way stop near the DBARC front entrance (West Entrance) and P8.
Description of Work: The contractor will be installing directional signage 15’ from each stop sign location (four signs in total). The contractor will be drilling/digging holes in the ground to secure the base of the posts that the signs will adhere to.
For further information – please contact:
Lindsay Nero – Manager, Brand Engagement
Email: lindsay.nero [at] mohawkcollege.ca (lindsay[dot]nero[at]mohawkcollege[dot]ca)
A, B, E, F, G-Wing – Painting Work – MAR 16 / MAR 17 / MAR 18 * UPDATED NOTICE
Facility Services is providing an updated notice of work that will be occurring at the Fennell Campus:
Updated Schedule:
- Wednesday, March 18th, 2026 – 4:00 PM to 11:00 PM
- Tuesday, March 17th, 2026 – 4:00 PM to 11:00 PM
Original Schedule:
- Monday, March 16th, 2026 – 4:00 PM to 11:00 PM
Contractor: RV Painting
Location: Fennell Campus
- A114 (patching holes and re-painting door/frame)
- B102A (touch-up painting around new exit signs)
- E-Wing 2nd and 3rd floors (touch-up painting around new exit signs)
- F-Wing (touch-up painting around new exit signs)
- G010 (patching holes and re-painting door/frame)
Description of Work: The contractor will be patching and painting the areas summarized above.
For further information – please contact:
Jeremy Dowling – Engineering Services Officer
Email: jeremy.dowling [at] mohawkcollege.ca (jeremy[dot]dowling[at]mohawkcollege[dot]ca)
B103 & B105 – Gas Detection Equipment Installation – MAR 21
Facility Services is providing notice of work that will be occurring at the Fennell Campus:
Updated Schedule:
- Saturday, March 21st, 2026 – 7:00 AM to 5:00 PM
Contractor: O’Keefe Electrical and Lancaster Group
Location: Fennell Campus
- B103
- B105
Description of Work: O’Keefe Electrical and Lancaster Group will be commissioning gas detection equipment in B103 and B105. Please note that the alarms and strobes will go off temporarily during this process to test their operation.
For further information – please contact:
Domenic Grandoni – Engineering Services Officer
Email: domenic.grandoni1 [at] mohawkcollege.ca (domenic[dot]grandoni1[at]mohawkcollege[dot]ca)
EA004 – Universal Washroom AODA Improvement – MAR 16 & MAR 17
Facility Services is providing notice of work that will be occurring at the Fennell Campus:
Monday, March 16th, 2026 to Tuesday, March 17th, 2026 from 7:00 AM to 3:00 PM
Contractor: Britt Drywall
Location: Fennell Campus : EA004 – Universal Washroom
Description of Work: The contractor will be cutting out the drywall, installing backing, reinstalling the drywall, patching and painting to install a new baby change table.
The washroom will be out of service. Please use alternate washroom.
We apologize for any inconvenience this may cause and appreciate your understanding.

Figure 1: Fennell Campus - EA-Wing Level 0 Washroom EA004
For further information – please contact:
Jeremy Dowling – Engineering Services Officer
Email: jeremy.dowling [at] mohawkcollege.ca (jeremy[dot]dowling[at]mohawkcollege[dot]ca)
C-Wing & F-Wing – Electrical Panel Replacement – MAR 17
Facility Services is providing notice of work that will be occurring at the Fennell Campus:
Tuesday, March 17th, 2026 – 7:00 AM to 5:00 PM
Company: Cahill Electric Limited
Location: Fennell Campus: C-Wing & F-Wing
Description of Work: This contractor will be completing an ESA Inspection.
For further information – please contact:
Domenic Grandoni – Engineering Services Officer
Email: domenic.grandoni1 [at] mohawkcollege.ca (domenic[dot]grandoni1[at]mohawkcollege[dot]ca)
F-Wing – Exit Light Installations – MAR 21
Facility Services is providing notice of work that will be occurring at the Fennell Campus:
Saturday, March 21st, 2026 – 7:00 AM to 3:00 PM
Contractor: O’Keefe Electrical
Location: Fennell Campus: F-Wing 1st Floor Corridor and Stair J
Description of Work: O’Keefe Electrical will be installing two new exit lights. There will be noisy work at times.
For further information – please contact:
Jeremy Dowling – Engineering Services Officer
Email: jeremy.dowling [at] mohawkcollege.ca (jeremy[dot]dowling[at]mohawkcollege[dot]ca)
J-Wing 1st Floor – Bathrooms Building Services Investigation – MAR 17 & MAR 18
Facility Services is providing notice of work that will be occurring at the Fennell Campus:
Tuesday, March 17th, 2026 – 7:00 AM - 5:00 PM
- Rooms: J104, J106 ,J106A, J106B, J108, J110 & J114
Wednesday, March 18th, 2026 – 7:00 AM - 5:00PM
- Rooms: J006, J008, & J014
Contractor: Britt Drywall
Location: Fennell Campus: J-Wing Washrooms: J104, J106 ,J106A, J106B, J108, J110, J114, J006, J008 & J014
Description of Work: The contractor will be completing some investigative work to determine the location of any services that are buried within the perimeter of the rooms listed above.
The washrooms in this area will be closed for the duration of the work. Alternatively, the washrooms on the floor above and/or below the washrooms will be available for use.
For further information – please contact:
Domenic Grandoni – Engineering Services Officer
Email: domenic.grandoni1 [at] mohawkcollege.ca (domenic[dot]grandoni1[at]mohawkcollege[dot]ca)
Governor's Boulevard – Lamppost Banners – MAR 19 & MAR 20
Facility Services is providing notice of work that will be occurring at Fennell Campus:
Thursday, March 19th, 2026 to Friday, March 20th, 2026 – 8:30 AM to 4:30 PM
Contractor: RM Signs
Location: Fennell Campus (exterior along Governor’s Boulevard)
Description of Work: The contractor will be installing banners, using a crane truck, at the 17 lampposts along Governor’s Boulevard.
For further information – please contact:
Lindsay Nero – Manager, Brand Engagement
Email: lindsay.nero [at] mohawkcollege.ca (lindsay[dot]nero[at]mohawkcollege[dot]ca)
E022 and E026 – Washroom Improvements – MAR 09 to MAR 13
Facility Services is providing an updated notice of work that will be occurring at the Fennell Campus:
Monday, March 9th, 2026 to Friday, March 13th, 2026 – 6:00 AM to 3:00 PM
Contractor: Britt Drywall
Location: Fennell Campus – Affected Washrooms
- E022 – Women’s Washroom
- E026 – Men’s Washroom
Description of Work: The contractor be installing new ceilings, replacing toilet partitions, installing urinal screens, door hardware, grab bars, etc.
The washrooms will be out of service as they work on each one. Please use alternate washrooms. They are starting early each day to complete the noisy work before classes.
We apologize for any inconvenience this may cause and appreciate your understanding.

Figure 1: Fennell Campus - E-Wing Level 0 Washrooms
For further information – please contact:
Jeremy Dowling – Engineering Services Officer
Email: jeremy.dowling [at] mohawkcollege.ca (jeremy[dot]dowling[at]mohawkcollege[dot]ca)
E-Wing 1st Floor – Ceiling Cloud Painting – MAR 11
Facility Services is providing notice of work that will be occurring at the Fennell Campus:
Wednesday, March 11th, 2026 – 4:00 PM to 11:00 PM
Contractor: RV Painting
Location: Fennell Campus: E-Wing 1st Floor Corridor (across from the elevator)
Description of Work: The contractor will be patching and painting the drywall ceiling clouds in the E-Wing, 1st Floor corridor across from the elevator.
For further information – please contact:
Jeremy Dowling – Engineering Services Officer
Email: jeremy.dowling [at] mohawkcollege.ca (jeremy[dot]dowling[at]mohawkcollege[dot]ca)
F118 – Seating Removal – MAR 09
Facility Services is providing notice of work that will be occurring at the Fennell Campus:
Monday, March 9th, 2026 – 7:00 AM to 6:00 PM
Contractor: Britt Drywall
Location: Fennell Campus – Room F118
Description of Work: Removal of the fixed swing arm chairs.
For further information – please contact:
Sloan Alessandro – Project Manager, Construction Engineering Services
Email: sloan.alessandro [at] mohawkcollege.ca (sloan[dot]alessandro[at]mohawkcollege[dot]ca)
EA211 – Electrical Work – MAR 13
Facility Services is providing notice of work that will be occurring at the Fennell Campus:
Friday, March 13th, 2026 – 11:00 AM to 2:00 PM
Contractor: LJ Barton
Location: Fennell Campus – Room EA211
Description of work: LJ Barton will be turning off the electrical panel in EA211 tomorrow between 11:00 AM and 2:00 PM.
This will only impact EA211 and receptacles in EA210A. No other areas will be impacted.
For more information please contact:
Paul Dalgleish – Manager, Buildings, Grounds and Housekeeping Operations
Email: paul.dalgleish [at] mohawkcollege.ca (paul[dot]dalgleish[at]mohawkcollege[dot]ca)
J-Wing – Exterior Sign Installation – MAR 12
Facility Services is providing notice of work that will be occurring at the Fennell Campus:
- Thursday, March 12th, 2026 – 8:00 AM to 4:00 PM
Contractor: RM Signs
Location: Fennell Campus (exterior building, photo attached for reference)
Description of Work: The contractor will be installing a large flex face sign on the exterior building outside of J-Wing.

Figure 1: Fennell Campus - Exterior Location of Work
For further information – please contact:
Lindsay Nero – Manager, Brand Engagement
Email: lindsay.nero [at] mohawkcollege.ca (lindsay[dot]nero[at]mohawkcollege[dot]ca)
J-Wing 1st Floor – Building Services Investigation – MAR 17 & MAR 18
Facility Services is providing notice of work that will be occurring at the Fennell Campus:
Tuesday, March 17th, 2026 & Wednesday, March 18th, 2026 – 7:00 AM - 5:00 PM
Contractor: Britt Drywall
Location: Fennell Campus – J-Wing Rooms ( J104, J106, J106A, J106B, J108, J110, J114)
Description of Work: The contractor will be completing some investigative work to determine the location of any services that are buried within the perimeter of the rooms listed above.
The washrooms in this area will be closed for the duration of the work.
Alternatively, the washrooms on the floor above and below level one will be available for use.
For further information – please contact:
Domenic Grandoni – Engineering Services Officer
Email: domenic.grandoni1 [at] mohawkcollege.ca (domenic[dot]grandoni1[at]mohawkcollege[dot]ca)
A130 – Human Care Lift Installation – MAR 12
Facility Services is providing notice of work that will be occurring at the Fennell Campus:
Thursday, March 12th, 2026 – 3:00 PM to 5:00PM
Contractor: C&DC Orthomobility
Location: Fennell Campus – A130 Accessible Washroom
Description of Work: Contractors will be installing a new mobility lift in Washroom A130 on Thursday, March 12th.
This work is being completed between 3:00 PM and 5:00 PM, during this time, the washroom will be unavailable.
The nearest accessible washroom is E102.

Figure 1: Fennell Campus - Human Care Lift
For more information please contact:
Paul Dalgleish – Manager, Buildings, Grounds and Housekeeping Operations
Email: paul.dalgleish [at] mohawkcollege.ca (paul[dot]dalgleish[at]mohawkcollege[dot]ca)
B103 & B105 – Gas Monitoring Equipment Installation – MAR 11 & MAR 12
Facility Services is providing notice of work that will be occurring at the Fennell Campus:
- Wednesday, March 11th, 2026 – 8:00 AM to 6:00 PM
- Thursday, March 12th, 2026 – 8:00 AM to 6:00 PM
Contractor: Logixx Security
Location: Fennell Campus
- B103
- B105
Description of Work: Logixx will be installing gas monitoring equipment.
For further information – please contact:
Patrick Belina – Project Manager – Construction and Renovations
Email: patrick.belina [at] mohawkcollege.ca (patrick[dot]belina[at]mohawkcollege[dot]ca)
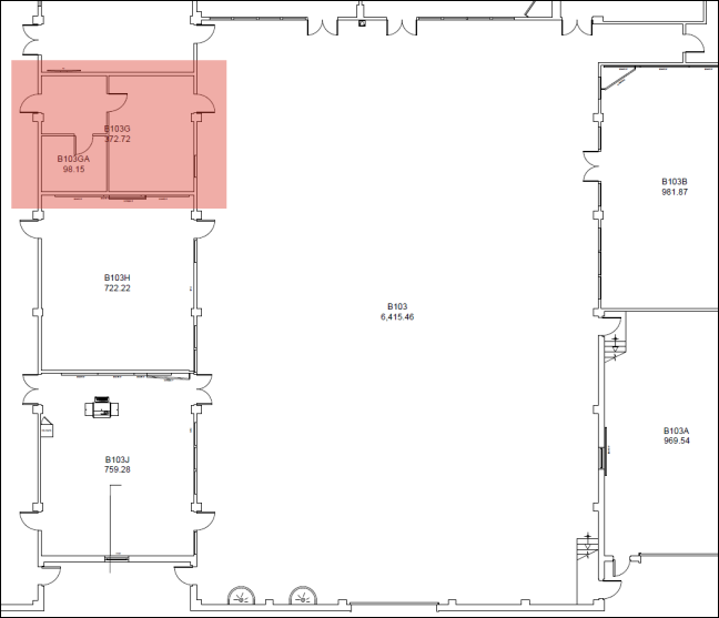
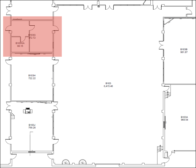
B103G – Storage/Electrical Room Renovation – MAR 10
Facility Services is providing notice of work that will be occurring at the Fennell Campus:
Tuesday, March 10th, 2026 – 6:00 AM to 3:00 PM
Contractor: Britt Drywall
Location: Fennell Campus
- B-Wing 1st Floor: B103G
Description of Work: The contractor will be installing baseboard and chain link fencing. The noisy work will be completed between 6:00 AM to 8:00 AM before classes start.

Figure 1: Fennell Campus – B-Wing B103g
For further information – please contact:
Jeremy Dowling – Engineering Services Officer
Email: jeremy.dowling [at] mohawkcollege.ca (jeremy[dot]dowling[at]mohawkcollege[dot]ca)
C-Wing, F-Wing & J-Wing – AODA Tactile Warning Floor Inserts – MAR 14 & MAR 15
Facility Services is providing notice of work that will be occurring at the Fennell Campus:
- Saturday, March 14th, 2026 – 9:00 AM to 5:00 PM
- Sunday, March 15th, 2026 – 7:00 AM to 5:00 PM
Contractor: Mario’s Tile and Interiors
Location: Fennell Campus
- C-Wing – Stair I leading to the 2nd floor
- F-Wing – near F145 and F146
- J-Wing – Stair E all levels
Description of Work: The contractor will be installing AODA tactile warning floor inserts at the top of the stairs.

Figure 1: Fennell Campus - C-Wing Stair I

Figure 2: Fennell Campus - F-Wing Stair

Figure 3: Fennell Campus - J-Wing Stair E
For further information – please contact:
Jeremy Dowling – Engineering Services Officer
Email: jeremy.dowling [at] mohawkcollege.ca (jeremy[dot]dowling[at]mohawkcollege[dot]ca)
All Elevators – Scheduled Elevator Emergency Phone Line Updates – MAR 05
Facility Services is providing notice of work that will be occurring at the Fennell and Stoney Creek Campus:
Thursday, March 5th, 2026 – 8:30 AM to 4:30 PM
Contractor: Schindler Elevator Corporation
Location: Fennell & Stoney Creek Campus - Elevators
Description of Work: Schindler Elevator technicians will be on site to reprogram the emergency phone lines for all elevators at the Fennell and Stoney Creek Campus. Each elevator will be taken out of service for up to one hour while its phone line is updated to the new emergency contact number.
Teams will work in sequence, with two crews on site to complete all elevators in one day. During this time, the elevator undergoing work will be temporarily unavailable; however, Schindler can provide access if required for students or staff. After reprogramming, each elevator will be functionally tested to ensure correct operation and call routing.
For more information please contact:
Paul Dalgleish – Manager, Buildings, Grounds and Housekeeping Operations
Email: paul.dalgleish [at] mohawkcollege.ca (paul[dot]dalgleish[at]mohawkcollege[dot]ca)
E022 & E026 – Washroom Improvements – FEB 27 to MAR 06
Facility Services is providing notice of work that will be occurring at the Fennell Campus:
Friday, February 27th, 2026 to Friday, March 6th, 2026 – 6:00 AM to 3:00 PM
Contractor: Britt Drywall
Location: Fennell Campus – Affected Washrooms
- E022 – Women’s Washroom
- E026 – Men’s Washroom
Description of Work: The contractor be installing new ceilings, replacing toilet partitions, installing urinal screens, door hardware, grab bars, etc.
The washrooms will be out of service as they work on each one. Please use alternate washrooms. They are starting early each day to complete the noisy work before classes.
We apologize for any inconvenience this may cause and appreciate your understanding.

Figure 1: Fennell Campus - E-Wing Level 0 Washrooms
For further information – please contact:
Jeremy Dowling – Engineering Services Officer
Email: jeremy.dowling [at] mohawkcollege.ca (jeremy[dot]dowling[at]mohawkcollege[dot]ca)
B-Wing – Gas Detection Equipment Installation – MAR 02 to MAR 07 *UPDATED
Facility Services is providing an updated notice of work that will be occurring at the Fennell Campus:
Updated Schedule:
- Friday, March 6th, 2026 – 11:00 AM to 10:00 PM
- Saturday, March 7th, 2026 – 7:00 AM to 5:00PM
Original Schedule:
- Monday, March 2nd, 2026 – 10:00 PM to 6:00 AM
- Tuesday, March 3rd, 2026 – 10:00 PM to 6:00 AM
- Wednesday, March 4th, 2026 – 5:00 PM to 6:00 AM
- Thursday, March 5th, 2026 – 10:00 PM to 6:00 AM
Contractor: O’Keefe Electrical
Location: Fennell Campus
- B103
- B105
Description of Work: O’Keefe Electrical will be installing gas detection equipment.
For further information – please contact:
Patrick Belina – Project Manager – Construction and Renovations
Email: patrick.belina [at] mohawkcollege.ca (patrick[dot]belina[at]mohawkcollege[dot]ca)
C-Wing – Tim Hortons Express Hot Water Heater Upgrade – MAR 05
Facility Services is providing notice of work that will be occurring at the Fennell Campus:
Thursday, March 5th, 2026 – 5:00 PM to 10:00 PM
Contractor: LJ Barton
Location: Fennell Campus: C-Wing - Tim Hortons Express
Description of Work: LJ Barton will be upgrading the hot water heater for the Tim Hortons Express.
No impact to the operation of the College, all work will be contained in the Tim Hortons space.
For more information please contact:
Paul Dalgleish – Manager, Buildings, Grounds and Housekeeping Operations
Email: paul.dalgleish [at] mohawkcollege.ca (paul[dot]dalgleish[at]mohawkcollege[dot]ca)
E-Wing & F-Wing – Exit Light Replacements – MAR 03 & MAR 05
Facility Services is providing notice of work that will be occurring at the Fennell Campus:
Tuesday, March 3rd, 2026 and Thursday, March 5th, 2026 – 6:00 PM to 11:00 PM
Contractor: O’Keefe Electrical
Location: Fennell Campus
- E-Wing 2nd and 3rd Floor Corridors
- F-Wing Basement and 1st Floor Corridors
Description of Work: O’Keefe Electrical will be replacing existing exit lights with new ones and installing some in new locations.
For further information – please contact:
Jeremy Dowling – Engineering Services Officer
Email: jeremy.dowling [at] mohawkcollege.ca (jeremy[dot]dowling[at]mohawkcollege[dot]ca)
E-Wing – Exit Lights Installation – MAR 06
Facility Services is providing an updated notice of work that will be occurring at the Fennell Campus:
Friday, March 6th, 2026 – 7:00 AM to 1:00 PM
Contractor: O’Keefe Electrical
Location: Fennell Campus: E-Wing 2nd and 3rd Floor Corridors
Description of Work: O’Keefe Electrical will be installing two new exit signs.
For further information – please contact:
Jeremy Dowling – Engineering Services Officer
Email: jeremy.dowling [at] mohawkcollege.ca (jeremy[dot]dowling[at]mohawkcollege[dot]ca)
F-Wing – Exit Light Replacements – MAR 02
Facility Services is providing notice of work that will be occurring at the Fennell Campus:
Monday, March 2nd, 2026 – 6:00 PM to 11:00 PM
Contractor: O’Keefe Electrical
Location: Fennell Campus: F-Wing Basement and 1st Floor Corridors and F108
Description of Work: O’Keefe Electrical will be replacing existing exit lights with new ones and installing some in new locations.
For further information – please contact:
Jeremy Dowling – Engineering Services Officer
Email: jeremy.dowling [at] mohawkcollege.ca (jeremy[dot]dowling[at]mohawkcollege[dot]ca)
F114 & E-Wing 1st Floor Ceiling Cloud – Painting – MAR 07 *UPDATED
Facility Services is providing an updated notice of work that will be occurring at the Fennell Campus:
Updated Schedule: Saturday, March 7th, 2026 – 6:00 AM to 3:00 PM
Original Schedule: Tuesday, March 3rd, 2026 – 4:30 PM to 11:00 PM
Contractor: RV Painting
Location: Fennell Campus: Room F114 & E-Wing 1st Floor Corridor
Description of Work: The contractor will complete painting touch-ups in Room F114 where signage was removed and will paint the drywall ceiling clouds in the E-Wing, 1st Floor corridor.
For further information – please contact:
Jeremy Dowling – Engineering Services Officer
Email: jeremy.dowling [at] mohawkcollege.ca (jeremy[dot]dowling[at]mohawkcollege[dot]ca)
G109y and G109z – Washrooms Duress System – MAR 02
Facility Services is providing an updated notice of work that will be occurring at the Fennell Campus:
Monday, March 2nd, 2026 – 8:00 AM to 5:00 PM
Contractor: O’Keefe Electrical
Location: Fennell Campus
- G109y Universal Washroom
- G109z Universal Washroom
Description of Work: O’Keefe Electrical will be upgrading/installing a Duress System in each washroom. The washrooms will be out of order during this time.
For further information – please contact:
Jeremy Dowling – Engineering Services Officer
Email: jeremy.dowling [at] mohawkcollege.ca (jeremy[dot]dowling[at]mohawkcollege[dot]ca)
FEBRUARY 2026
E-Wing – Window Replacement – DEC 15 to FEB 28
Facility Services is providing notice of work that will be occurring at the Fennell Campus:
Monday, December 15th, 2025 – Saturday, February 28th, 2025 from 7:00 AM – 7:00 PM
Contractor: Alwind Industries Ltd.
Location: Fennell Campus: E-Wing South Elevation
Description of Work: The existing windows of the E-Wing’s south elevation will be replaced. Work will be scheduled per room to minimize disruption to students and staff.
These rooms are included in the replacement project.
- Level 00 – E003, E005, E009, E011, E027, E031, E033
- Level 01 – E103, E105, E107, E109, E111, E113, E121, E123, E125
- Level 02 – E203, E205, E209, E227, E229, E229b, E229f, E231, E233
- Level 03 – E303, E305, E307, E309, E327, E329, E331

Figure 1: Blue dotted line denotes the area of work (E-Wing South Elevation)

Figure 2: Overview of the area of work (E-Wing South Elevation) All existing windows are scheduled to be replaced.

Figure 3: Overview of the staging areas: Blue – Disposal Bin, Orange – Fenced Staging Area (Storage Trailer, Boom Lift, etc.) All current refuse containers (red arrows) will remain accessible throughout the project, along with access to the MPAC loading dock.
For further information – please contact:
Sloan Alessandro – Project Manager, Construction Engineering Services
Email: sloan.alessandro [at] mohawkcollege.ca (sloan[dot]alessandro[at]mohawkcollege[dot]ca)
E-Wing – Window Covering Installation – FEB 17 to FEB 27
Facility Services is providing notice of work that will be occurring at the Fennell Campus:
Tuesday, February 17th, 2026 to Friday, February 27th, 2026 – 7:00 AM to 5:00 PM
Contractor: Elite Pro Shading Systems / Tri City Blinds
Location: Fennell Campus – E-Wing
Description of Work: Installation of new roller‑shade window coverings. Work will be scheduled around active classrooms and will take place only in rooms on Levels 00, 02, and 03 where roller shades are not currently installed and where new windows have already been completed.
For further information – please contact:
Sloan Alessandro – Project Manager, Construction Engineering Services
Email: sloan.alessandro [at] mohawkcollege.ca (sloan[dot]alessandro[at]mohawkcollege[dot]ca)
E116 & E118 – Washroom Improvements – FEB 23 to FEB 27
Facility Services is providing an updated notice of work that will be occurring at the Fennell Campus:
Monday, February 23rd, 2026 to Friday, February 27th, 2026 – 6:00 AM to 3:00 PM
Contractor: Britt Drywall
Location: Fennell Campus – Affected Washrooms
- E116 – Women’s Washroom
- E118 – Men’s Washroom
Description of Work: The contractor be installing new ceilings, replacing toilet partitions, installing urinal screens, door hardware, grab bars, etc.
The washrooms will be out of service as they work on each one. Please use alternate washrooms. They are starting early each day to complete the noisy work before classes.
We apologize for any inconvenience this may cause and appreciate your understanding.

Figure 1: Fennell Campus - E-Wing Level 1 Washrooms
For further information – please contact:
Jeremy Dowling – Engineering Services Officer
Email: jeremy.dowling [at] mohawkcollege.ca (jeremy[dot]dowling[at]mohawkcollege[dot]ca)
C-Wing & E-Wing – Sanitary Pits Cleaning – FEB 27
Facility Services is providing notice of work that will be occurring at the Fennell Campus:
Friday, February 27th, 2026 – 7:00 AM to 5:00 PM
Contractor: W.M. Groves
Location: Fennell Campus – Campus Wide
Description of Work: W.M. Groves will be on site on Friday, February 27th at 7:00 AM to perform the cleaning of sanitary pits across Campus. This includes C002, C039, C079, and E030d. The contractors will be parked outside with hoses running in the building.
There will be some slight odours in the immediate areas of the cleaning, but will dissipate throughout the day.
For more information please contact:
Paul Dalgleish – Manager, Buildings, Grounds and Housekeeping Operations
Email: paul.dalgleish [at] mohawkcollege.ca (paul[dot]dalgleish[at]mohawkcollege[dot]ca)
F114 – Corridor Painting – FEB 23 to FEB 25
Facility Services is providing notice of work that will be occurring at the Fennell Campus:
Monday, February 23rd, 2026 to Wednesday, February 25th, 2026 – 4:30 PM to 11:00 PM
Contractor: RV Painting
Location: Fennell Campus: Room F114 (Corridor)
Description of Work: The contractor will be painting the corridor walls around F114.

Figure 1: Fennell Campus – F-Wing F114
For further information – please contact:
Jeremy Dowling – Engineering Services Officer
Email: jeremy.dowling [at] mohawkcollege.ca (jeremy[dot]dowling[at]mohawkcollege[dot]ca)
G109y and G109z – Washrooms Duress System – FEB 23
Facility Services is providing an updated notice of work that will be occurring at the Fennell Campus:
Updated Schedule: Monday, February 23rd, 2026 – 8:00 AM to 5:00 PM
Contractor: O’Keefe Electrical
Location: Fennell Campus
- G109y Universal Washroom
- G109z Universal Washroom
Description of Work: O’Keefe Electrical will be upgrading/installing a Duress System in each washroom. The washrooms will be out of order during this time.
For further information – please contact:
Jeremy Dowling – Engineering Services Officer
Email: jeremy.dowling [at] mohawkcollege.ca (jeremy[dot]dowling[at]mohawkcollege[dot]ca)
Campus Wide – Sanitary Pits Cleaning – FEB 27
Facility Services is providing notice of work that will be occurring at the Fennell Campus:
Friday, February 27th, 2026 – 7:00 AM to 5:00 PM
Contractor: W.M. Groves
Location: Fennell Campus – Campus Wide
Description of Work: W.M. Groves will be on site on Friday, February 27th at 7:00 AM to perform the cleaning of sanitary pits across Campus. This includes C002, C039, C079, and E030d. The contractors will be parked outside with hoses running in the building.
There will be some slight odours in the immediate areas of the cleaning, but will dissipate throughout the day.
For more information please contact:
Paul Dalgleish – Manager, Buildings, Grounds and Housekeeping Operations
Email: paul.dalgleish [at] mohawkcollege.ca (paul[dot]dalgleish[at]mohawkcollege[dot]ca)
B103 & B105 – Gas Detection Equipment Installation – FEB 16, FEB 17, FEB 19
Facility Services is providing notice of work that will be occurring at the Fennell Campus:
- Monday, February 16th, 2026 – 6:00 AM to 10:00 PM
- Tuesday, February 17th, 2026 – 6:00 AM to 10:00 PM
- Thursday, February 19th, 2026 – 6:00 AM to 10:00 PM
Contractor: O’Keefe Electrical
Location: Fennell Campus - Rooms B103 & B105
Description of Work: O’Keefe Electrical will be installing gas detection equipment.
For further information – please contact:
Patrick Belina – Project Manager – Construction and Renovations
Email: patrick.belina [at] mohawkcollege.ca (patrick[dot]belina[at]mohawkcollege[dot]ca)
B, C, E & F-Wing – Exit Light Replacements – FEB 16, FEB 18, FEB 20
Facility Services is providing an updated notice of work that will be occurring at the Fennell Campus:
Revised Schedule: Wednesday, February 18th, 2026 and Friday, February 20th, 2026 – 8:00 AM to 5:00 PM
Original Schedule: Monday, February 16th, 2026 – 6:00 AM to 6:00 PM
Contractor: O’Keefe Electrical
Location: Fennell Campus
- B102, B103, B104 and B105
- C041
- E-Wing 2nd and 3rd Floor Corridors
- F-Wing Basement and 1st Floor Corridors, F108 and F118
Description of Work: O’Keefe Electrical will be replacing existing exit lights with new ones and installing some in new locations.
All breakers impacted are labelled as Exit Lights.
For further information – please contact:
Jeremy Dowling – Engineering Services Officer
Email: jeremy.dowling [at] mohawkcollege.ca (jeremy[dot]dowling[at]mohawkcollege[dot]ca)
C109 – Health & Wellness Centre Painting – FEB 17
Facility Services is providing notice of work that will be occurring at the Fennell Campus:
Tuesday, February 17th, 2026 – 8:00 AM to 4:00 PM
Contractor: RV Painting
Location: Fennell Campus: Room C109
Description of Work: The contractor will be painting a feature wall behind the reception desk.
For further information – please contact:
Jeremy Dowling – Engineering Services Officer
Email: jeremy.dowling [at] mohawkcollege.ca (jeremy[dot]dowling[at]mohawkcollege[dot]ca)
C, G, & I-Wing – AODA Tactile Warning Plates – FEB 17 & FEB 18
Facility Services is providing an updated notice of work for that will be occurring at the Fennell Campus:
Revised Schedule: Wednesday, February 18th, 2026 – 8:00 AM to 4:00 PM
Original Schedule: Tuesday, February 17th, 2026 – 8:00 AM to 4:00 PM
Contractor: Bestco Construction
Location: Fennell Campus
- C-Wing – Stair I (remaining area to be completed)
- C-Wing – Stair H (completed)
- G-Wing – Cellar Stair (completed)
- i-Wing – Stair P (completed)
Description of Work: The contractor will be installing AODA tactile warning plates at the top of the stairs.

Figure 1: Fennell Campus – C-Wing Stair I
For further information – please contact:
Jeremy Dowling – Engineering Services Officer
Email: jeremy.dowling [at] mohawkcollege.ca (jeremy[dot]dowling[at]mohawkcollege[dot]ca)
C-Wing and F-Wing – Final Panel Touch Ups – FEB 21
Facility Services is providing notice of work that will be occurring at the Fennell Campus:
Saturday, February 21st, 2026 – 8:00 AM to 5:00 PM
Contractor: RV Painting
Location: Fennell Campus
- C102
- C202
- F102i
- F-Wing Corridor near F143
Description of Work: The contractor will be touching up the paint on the electrical panels in the above rooms in C-Wing and F-Wing
For further information – please contact:
Patrick Belina – Project Manager – Construction and Renovations
Email: patrick.belina [at] mohawkcollege.ca (patrick[dot]belina[at]mohawkcollege[dot]ca)
E116 & E118 – Washroom Improvements – FEB 17 to FEB 20
Facility Services is providing notice of work that will be occurring at the Fennell Campus:
Tuesday, February 17th, 2026 to Friday, February 20th, 2026 from 7:00 AM to 5:00 PM
Schedule for the following week is to be determined and will be shared when available.
Contractor: Britt Drywall
Location: Fennell Campus – Affected Washrooms
- E116 – Women’s Washroom
- E118 – Men’s Washroom
Description of Work: The contractor be installing new ceilings, replacing toilet partitions, installing urinal screens, door hardware, grab bars, etc… The washrooms will be out of service as they work on each one. Please use alternate washrooms. This work will be noisy at times.
We apologize for any inconvenience this may cause and appreciate your understanding.

Figure 1: Fennell Campus - E-Wing Level 1 Washrooms
For further information – please contact:
Jeremy Dowling – Engineering Services Officer
Email: jeremy.dowling [at] mohawkcollege.ca (jeremy[dot]dowling[at]mohawkcollege[dot]ca)
EA-Wing – JCPI - HVAC Maintenance – FEB 17 to FEB 20
Facility Services is providing notice of work that will be occurring at the Fennell Campus:
Reading Week: Tuesday, February 17th, 2026 to Friday, February 20th, 2026 – 7:00 AM to 4:00 PM
Contractor: Daikin Applied
Location: Fennell Campus: EA‑Wing (Joyce Centre for Partnership and Innovation — JCPI)
Description of Work: Contractors will be on site throughout Reading Week to complete maintenance and servicing of the HVAC equipment across all four floors of the JCPI.
This work will involve technicians accessing labs, classrooms, and theatres as needed to reach the equipment.
Please advise if you have any large events, exams, or reason that your space can not be accessed, and we will work around any scheduled events or bookings.
For more information please contact:
Paul Dalgleish – Manager, Buildings, Grounds and Housekeeping Operations
Email: paul.dalgleish [at] mohawkcollege.ca (paul[dot]dalgleish[at]mohawkcollege[dot]ca)
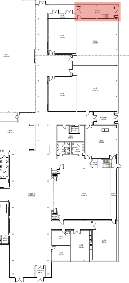
F-Wing – F144, F146, F148 – Roof Top Unit Replacement – FEB 17 to FEB 20
Facility Services is providing a notice of work scheduled to occur in F‑Wing, F144-F148, at the Fennell Campus.
Tuesday, February 17th, 2026 to Friday, February 20th, 2026
Contractors:
- General Contractors: VanAm Mechanical (Key Holder)
- Sub Contractors: Southern Ontario Electric (Electrical)
Location: Fennell Campus: F-Wing – Rooms F144, F146, F148 and associated corridors.
Description of Work: The contractor will be removing and replacing aged root top equipment with new more efficient equipment.

Figure 1: Fennell Campus - F-Wing – F144 / F148 Area
For further information – please contact:
Tom Ziemkiewicz – Project Manager, Engineering Services
Email: thomas.ziemkiewicz1 [at] mohawkcollege.ca (thomas[dot]ziemkiewicz1[at]mohawkcollege[dot]ca)
G109y and G109z – Washrooms Duress System – FEB 18 & FEB 20
Facility Services is providing an updated notice of work that will be occurring at the Fennell Campus:
Revised Schedule: Friday, February 20th, 2026 – 8:00 AM to 5:00 PM
Original Schedule: Wednesday, February 18th, 2026 – 8:00 AM to 5:00 PM
Contractor: O’Keefe Electrical
Location: Fennell Campus
- G109y Universal Washroom
- G109z Universal Washroom
Description of Work: O’Keefe Electrical will be upgrading/installing a Duress System in each washroom. The washrooms will be out of order during this time.
For further information – please contact:
Jeremy Dowling – Engineering Services Officer
Email: jeremy.dowling [at] mohawkcollege.ca (jeremy[dot]dowling[at]mohawkcollege[dot]ca)
Work Mobile: 905-961-1465
M-Wing – Road Closure and Crane for HVAC Unit Install – FEB 17
Facility Services is providing notice of work that will be occurring at the Fennell Campus:
Tuesday, February 17th, 2026 – 6:00 AM to 5:00 PM
Contractor: Modern Niagara
Location: Fennell Campus – M-Wing
Description of Work: Modern Niagara will be on site on Tuesday, February 17th, 2026 to install a new HVAC unit on the roof of M-Wing. There will be a crane on site parked on the maintenance road leading from Governor’s Blvd to E-Wing from 6:00 AM to 2:00 PM, restricting use of this road. The building (M-Wing) will be restricted from access for the day, but will be accessible the morning of Wednesday, February 18th, 2026 and moving forward.
We appreciate your patience with this project.

Figure 1: Fennell Campus - Road Closure - Governor's Blvd to E-Wing Maintenance Road
For more information please contact:
Paul Dalgleish – Manager, Buildings, Grounds and Housekeeping Operations
Email: paul.dalgleish [at] mohawkcollege.ca (paul[dot]dalgleish[at]mohawkcollege[dot]ca)
B103G – Storage/Electrical Room Renovation – FEB 10 & FEB 11
Facility Services is providing notice of work that will be occurring at the Fennell Campus:
Tuesday, February 10th, 2026 to Wednesday, February 11th, 2026 from 6:00 AM to 3:00 PM
Contractor: Britt Drywall
Location: Fennell Campus: B-Wing 1st Floor: B103G
Description of Work: The contractor will be removing a drywall partition and installing a chain link fence separating the storage room from the electrical panels. Miscellaneous electrical/lighting work along with painting and baseboard.
The noisy work will be completed between 6:00 AM to 8:00 AM.

Figure 1: Fennell Campus – B-Wing B103g
For further information – please contact:
Jeremy Dowling – Engineering Services Officer
Email: jeremy.dowling [at] mohawkcollege.ca (jeremy[dot]dowling[at]mohawkcollege[dot]ca)
B103G – Storage/Electrical Room Renovation – FEB 12
Facility Services is providing an updated notice of work that will be occurring at the Fennell Campus:
Thursday, February 12th, 2026 from 7:00 AM to 3:00 PM
Contractor: Britt Drywall and their sub-contractor O’Keefe Electrical
Location: Fennell Campus: B-Wing 1st Floor: B103G
Description of Work: The contractor will be painting and installing baseboard. The electrician will be re-working the light switching.

Figure 1: Fennell Campus – B-Wing B103g
For further information – please contact:
Jeremy Dowling – Engineering Services Officer
Email: jeremy.dowling [at] mohawkcollege.ca (jeremy[dot]dowling[at]mohawkcollege[dot]ca)
R-Wing – Change Rooms and Washroom AODA Accessories – FEB 09 to FEB 10
Facility Services is providing notice of work that will be occurring at the Fennell Campus:
- Monday, February 9th, 2026 from 6:00 AM to 3:00 PM
- Tuesday, February 10th, 2026 from 6:00 AM to 3:00 PM
Contractor: Britt Drywall
Location: Fennell Campus
- R115, R116 and R117 – Women’s Change Rooms
- R118, R119 and R120 – Men’s Change Rooms
- R201b – Universal Washroom
Description of Work: The contractor will be installing washroom accessories to comply with AODA.
We apologize for any inconvenience this may cause and appreciate your understanding.
For further information – please contact:
Jeremy Dowling – Engineering Services Officer
Email: jeremy.dowling [at] mohawkcollege.ca (jeremy[dot]dowling[at]mohawkcollege[dot]ca)
G112 – Painting Walls – FEB 10
Facility Services is providing notice of work that will be occurring at the Fennell Campus:
Tuesday, February 10th, 2026 – 4:00 PM to 10:00 PM
Contractor: Footage Inc.
Location: Fennell Campus: G112
Description of Work: Footage Inc. will be on site on Wednesday, February 10th to paint walls in G112A.
For more information please contact:
Terry Walker – Lead Hand-Building Maintenance
Locksmith/Safe Technician
Email: terry.walker1 [at] mohawkcollege.ca (terry[dot]walker1[at]mohawkcollege[dot]ca)
Stoney Creek Campus (SC)
APRIL 2026
A140 – Electrical Work – APR 29 to MAY 01 / MAY 04 to MAY 06
Facilities Management will be undertaking an electrical upgrade project at the Stoney Creek Campus. This work is part of our ongoing efforts to maintain and improve campus infrastructure, safety, and functionality. Facilities Management is coordinating this project in collaboration with relevant departments to ensure minimal disruption to campus operations. Updates will be provided as needed.
Project / Work Details:
Schedule:
Work will take place during:
- Dates:
- Wednesday, April 29th, 2026 to Friday, May 1st, 2026
- Monday, May 4th, 2026 to Wednesday, May 6th, 2026
- Times: Daily 7:00 AM to 4:00 PM
Location:
- Campus: Stoney Creek
- Building/Wing: A-Wing & B-Wing
- Rooms: A140 & B103a
Contractor:
- Cahill Electric Inc.
Scope of Work:
The project will include the following activities:
- Electrical distribution infrastructure alterations
Expected Impacts:
- Intermittent minor noise (drilling) is possible.
- No power interruptions are anticipated.
For further information – please contact:
Jim Davidson – Project Manager
Email: james.davidson10 [at] mohawkcollege.ca (james[dot]davidson10[at]mohawkcollege[dot]ca)
D-Wing – Corridor Expansion Joint / Tile Repair – APR 29
Facilities Management will be undertaking a repair at the Stoney Creek Campus. This work is part of our ongoing efforts to maintain and improve campus infra
SC – Overhead Door Annual Inspection – APR 29 & APR 30
Facilities Management will be undertaking a maintenance project at Fennell & Stoney Creek Campus. This work is part of our ongoing efforts to maintain and improve campus infrastructure, safety, and functionality. Facilities Management is coordinating this project in collaboration with relevant departments to ensure minimal disruption to campus operations. Updates will be provided as needed.
Project / Work Details:
Schedule:
Fennell Campus
- Dates: Monday, April 27th, 2026 & Tuesday, April 28th, 2026
- Time: 8:30 AM to 4:00 PM
Stoney Creek
- Dates: Wednesday, April 29th, 2026 & Thursday, April 30th, 2026
- Time: 8:30 AM to 4:00 PM
Location:
- Campus: Fennell & Stoney Creek Campuses
- Building/Wing: All buildings and wings
Contractor:
- O’Brien’s Solutions
Scope of Work:
The project will include the following activities:
- Overhead Door annual inspection
Expected Impacts:
- Noise
- General construction activity
- Temporary access restrictions
- Inability to use overhead door while inspection is taking place
- Increased contractors' presence in the area
For more information please contact:
Paul Dalgleish – Manager, Buildings, Grounds and Housekeeping Operations
Email: paul.dalgleish [at] mohawkcollege.ca (paul[dot]dalgleish[at]mohawkcollege[dot]ca)
Project / Work Details:
Schedule:
Work will take place during:
- Date: Wednesday, April 29th, 2026
- Time: 9:00 AM to 12:00 PM
Location:
- Campus: Stoney Creek
- Building/Wing: D-Wing
- Room: Corridor outside D111/D112
Contractor:
- Mario's Tile and Interiors
Scope of Work:
The project will include the following activities:
- Removing some vinyl composite tile and installing an expansion joint and installing tile.
Expected Impacts:
A small part of the corridor will be blocked off for the repair, but staff and students will still be able to walk by.
For further information – please contact:
Jeremy Dowling – Engineering Services Officer
Email: jeremy.dowling [at] mohawkcollege.ca (jeremy[dot]dowling[at]mohawkcollege[dot]ca)
Facilities Management will be undertaking a maintenance project at Fennell & Stoney Creek Campus. This work is part of our ongoing efforts to maintain and improve campus infrastructure, safety, and functionality. Facilities Management is coordinating this project in collaboration with relevant departments to ensure minimal disruption to campus operations. Updates will be provided as needed.
Project / Work Details:
Schedule:
Fennell Campus
- Dates: Monday, April 27th, 2026 & Tuesday, April 28th, 2026
- Time: 8:30 AM to 4:00 PM
Stoney Creek
- Dates: Wednesday, April 29th, 2026 & Thursday, April 30th, 2026
- Time: 8:30 AM to 4:00 PM
Location:
- Campus: Fennell & Stoney Creek Campuses
- Building/Wing: All buildings and wings
Contractor:
- O’Brien’s Solutions
Scope of Work:
The project will include the following activities:
- Overhead Door annual inspection
Expected Impacts:
- Noise
- General construction activity
- Temporary access restrictions
- Inability to use overhead door while inspection is taking place
- Increased contractors' presence in the area
For more information please contact:
Paul Dalgleish – Manager, Buildings, Grounds and Housekeeping Operations
Email: paul.dalgleish [at] mohawkcollege.ca (paul[dot]dalgleish[at]mohawkcollege[dot]ca)
SC – Roof Anchor Inspections – APR 30 – 7:00 AM to 4:30 PM
Facilities Management will be undertaking a maintenance project at the Fennell and Stoney Creek Campus. This work is part of our ongoing efforts to maintain and improve campus infrastructure, safety, and functionality. Facilities Management is coordinating this project in collaboration with relevant departments to ensure minimal disruption to campus operations. Updates will be provided as needed.
Project / Work Details:
Schedule:
Work will take place during:
- Date: Thursday, April 30th, 2026
- Time: 7:00 AM to 4:30 PM
Location:
- Campus: Fennell & Stoney Creek
- Building/Wing: Fennell – Roof and H-Wing / Stoney Creek - Roof
Contractor:
- Primary Contractor: Roque Roofing
- Subcontractor: Anchorpoint Inspections
Scope of Work:
The project will include the following activities:
- Anchorpoints will be at Mohawk College performing roof anchor inspections.
Expected Impacts:
- No disruption is expected as all work will be on the roof, and a visual inspection in H-Wing.
Additional Safety or Access Information:
- Only authorized personnel are permitted within construction zones
For more information please contact:
Paul Dalgleish – Manager, Buildings, Grounds and Housekeeping Operations
Email: paul.dalgleish [at] mohawkcollege.ca (paul[dot]dalgleish[at]mohawkcollege[dot]ca)
A/B/C/D/G – Electrical Work – APR 22 & APR 23
Facilities Management will be undertaking an electrical upgrade project at the Stoney Creek Campus. This work is part of our ongoing efforts to maintain and improve campus infrastructure, safety, and functionality. Facilities Management is coordinating this project in collaboration with relevant departments to ensure minimal disruption to campus operations. Updates will be provided as needed.
Project / Work Details:
Schedule:
Work will take place during:
- Date(s): Wednesday April 22nd, 2026 & Thursday April 23rd, 2026
- Time: 10:00 PM to 3:00 AM
Location:
- Campus: Stoney Creek
- Building/Wing: A/B/C/D/G
- Room(s): Various
Contractor:
- Primary Contractor: Cahill Electric Inc.
- Subcontractor(s): N/A
Scope of Work:
The project will include the following activities:
- Electrical distribution infrastructure alterations
Expected Impacts:
Temporary power interruptions that may impact IT, Security and other miscellaneous equipment
For further information – please contact:
Jim Davidson – Project Manager
Email: james.davidson10 [at] mohawkcollege.ca (james[dot]davidson10[at]mohawkcollege[dot]ca)
A140 & B103A – Electrical Upgrade – APR 24
Facilities Management will be undertaking an electrical upgrade project at the Stoney Creek Campus. This work is part of our ongoing efforts to maintain and improve campus infrastructure, safety, and functionality. Facilities Management is coordinating this project in collaboration with relevant departments to ensure minimal disruption to campus operations. Updates will be provided as needed.
Project / Work Details:
Schedule:
Work will take place during:
- Date: Friday, April 24th, 2026
- Time: 6:30 AM to 5:00 PM
Location:
- Campus: Stoney Creek
- Building/Wing: A-Wing & B-Wing
- Room(s): A140 & B103a
Contractor:
- Primary Contractor: Cahill Electric Inc.
- Subcontractor(s): N/A
Scope of Work:
The project will include the following activities:
- Electrical distribution infrastructure alterations
Expected Impacts:
- Intermittent minor noise (drilling) is possible.
For further information – please contact:
Jim Davidson – Project Manager
Email: james.davidson10 [at] mohawkcollege.ca (james[dot]davidson10[at]mohawkcollege[dot]ca)
B106 & B110 – Compressed Air Work – APR 16
Facility Services is providing notice of work that will be occurring at the Stoney Creek Campus:
Thursday, April 16th, 2026 – 9:00 PM to 6:00 AM
Contractor: Barton Air Sales and Service
Location: Stoney Creek Campus: Room B106 and B110
Description of Work: Compressed air system installation of new equipment.
For further information – please contact:
Patrick Belina – Project Manager – Construction and Renovations
Email: patrick.belina [at] mohawkcollege.ca (patrick[dot]belina[at]mohawkcollege[dot]ca)
E109 – Carpentry Shop Washrooms – APR 13
Facility Services is providing notice of work that will be occurring at the Stoney Creek Campus:
Monday, April 13th, 2026 – 7:00 AM to 12:30 PM
Contractor: Britt Drywall
Location: Stoney Creek Campus: E-Wing – E109 Carpentry Shop Washrooms
Description of Work: The contractor will be installing kickplates and push plates on the washroom doors.
Please use alternate washrooms during this time.
For further information – please contact:
Jeremy Dowling – Engineering Services Officer
Email: jeremy.dowling [at] mohawkcollege.ca (jeremy[dot]dowling[at]mohawkcollege[dot]ca)
G-Wing – Building Condition Assessments – APR 14
Facility Services is providing notice of work that will be occurring at the Fennell Campus and Stoney Creek Campus:
Monday, April 13th, 2026 to Friday, April 17th, 2026 – 8:00 AM to 5:00 PM
Contractor: Roth Iams
Location: Fennell Campus and Stoney Creek Campus
Schedule:
- Monday, April 13th, 2026 – Fennell Campus – A-Wing
- Tuesday, April 14th, 2026 – Fennell Campus – B-Wing
- Tuesday, April 14th, 2026 – Stoney Creek Campus – G-Wing
- Wednesday, April 15th, 2026 – Fennell Campus – C-Wing
- Thursday, April 16th, 2026 – Fennell Campus – C-Wing
- Friday, April 17th, 2026 – Fennell Campus – J-Wing
Description of Work: The consultants will be completing a visual review on building components, mechanical equipment, and electrical systems within the areas listed above. This work is part of a building condition assessment to evaluate the current state of the building infrastructure.
Consultants will be entering and exiting rooms within these wings as required. There will be no interruption to scheduled classes or exams. All consultants will be accompanied by Facility Services staff.
For further information – please contact:
Domenic Grandoni – Engineering Services Officer
Email: domenic.grandoni1 [at] mohawkcollege.ca (domenic[dot]grandoni1[at]mohawkcollege[dot]ca)
A140 & B103A – Electrical Rooms Work – MAR 30 to APR 03
Facility Services is providing notice of work that will be occurring at the Fennell Campus:
· Monday, March 30th, 2026 – Friday, April 3rd, 2026, daily from 7:00 AM to 5:00 PM
Contractor: Cahill Electric
Location: Stoney Creek Campus: A140 & B103A Electrical Rooms
Description of Work: Cahill Electric will be performing electrical renovation work in the rooms noted above.
There is no power shutdown required and no dust or noise is anticipated. All work will be contained within the two electrical rooms.
For further information – please contact:
Jim Davidson – Project Manager – Electrical & Construction
Email: james.davidson10 [at] mohawkcollege.ca (james[dot]davidson10[at]mohawkcollege[dot]ca)
B-Wing – Stairwell "J" Flooring - MAR 25 / APR 01 / APR 02 – Expand for time details
Facility Services is providing notice of work that will be occurring at the Stoney Creek Campus:
- Wednesday, March 25th, 2026 – 3:00 PM to 2:00 AM
- Wednesday, April 1st, 2026 – 1:00 PM to 12:00 AM
- Thursday, April 2nd, 2026 – 8:00 AM to 6:00 PM
**Security: Please allow the contractor to work later than noted above, if they require in order to complete their work.**
Contractor: Mario’s Tile and Interiors
Location: Stoney Creek Campus - B-Wing – Stair J
Description of Work: The contractor will be installing new flooring in the stairwell. The stair will be closed for access, please use the two alternate stairs.

Figure 1: Stoney Creek Campus - B-Wing Stair J
For further information – please contact:
Jeremy Dowling – Engineering Services Officer
Email: jeremy.dowling [at] mohawkcollege.ca (jeremy[dot]dowling[at]mohawkcollege[dot]ca)
E-Wing Outside – Hydrant Flow Test – APR 01
Facility Services is providing notice of work that will be occurring at the Stoney Creek Campus:
Wednesday, April 1st, 2026 – 8:00 AM to 10:00 AM
Contractor: OMG Engineering with Troy Life & Fire Safety
Location: Stoney Creek Campus: Outside of E-Wing (CTTC)
Description of Work: A hydrant flow test will be conducted on the fire hydrant located at the north east corner of the CTTC building.
The test will be conducted 100% outdoors and take no longer than 1 hour.

Figure 1: Stoney Creek Campus - Outside E-Wing Fire Hydrant Location
For further information – please contact:
Sloan Alessandro – Project Manager, Construction Engineering Services
Email: sloan.alessandro [at] mohawkcollege.ca (sloan[dot]alessandro[at]mohawkcollege[dot]ca)
MARCH 2026
E109E – Electrical Work – MAR 30
Facility Services is providing notice of work that will be occurring at the Stoney Creek Campus:
Monday, March 30th, 2026 – 7:00 AM to 4:00 PM
Contractor: O’Keefe Electric Ltd.
Location: Stoney Creek Campus: E-Wing Gas Storage Cage & E109e Main Electrical Room
Description of Work: The contractor will complete the electrical tie-in of the welding trailer power feeder to the newly installed 600VAC main switchgear.
For further information – please contact:
Jim Davidson – Project Manager – Electrical & Construction
Email: james.davidson10 [at] mohawkcollege.ca (james[dot]davidson10[at]mohawkcollege[dot]ca)
D-Wing – Corridor Flooring – MAR 22 & MAR 24 to MAR 26
Facility Services is providing notice of work that will be occurring at the Stoney Creek Campus:
- Sunday, March 22nd, 2026 – 8:00 AM to 8:00 PM (removals)
- Tuesday, March 24th, 2026 – 7:30 PM to 2:00 AM
- Wednesday, March 25th, 2026 – 6:00 PM to 2:00 AM
- Thursday, March 26th, 2026 – 7:30 PM to 2:00 AM (if required)
**Security: Please allow the contractor to work later than noted above, if they require in order to complete their work.**
Contractor: Mario’s Tile and Interiors
Location: Stoney Creek Campus: D-Wing Corridor
- D-Wing 1st Floor Corridor between D102 and D112
Description of Work: Mario’s Tile and Interiors will be removing existing VCT flooring/baseboard and replacing with new.

Figure 1: Stoney Creek Campus - D-Wing Partial Corridor from D102 to D112
For further information – please contact:
Jeremy Dowling – Engineering Services Officer
Email: jeremy.dowling [at] mohawkcollege.ca (jeremy[dot]dowling[at]mohawkcollege[dot]ca)
D-Wing – Corridor Painting – MAR 26
Facility Services is providing notice of work that will be occurring at the Stoney Creek Campus:
Thursday, March 26th, 2026 – 4:00 PM to 11:00 PM
**Security: Please allow the contractor to work later than noted above, if they require in order to complete their work.**
Contractor: RV Painting
Location: Stoney Creek Campus: D-Wing Corridor
- D-Wing 1st Floor Corridor between D102 and D112
Description of Work: RV Painting will be completing some touch-up painting in the corridor.

Figure 1: Stoney Creek Campus - D-Wing Partial Corridor from D102 to D112
For further information – please contact:
Jeremy Dowling – Engineering Services Officer
Email: jeremy.dowling [at] mohawkcollege.ca (jeremy[dot]dowling[at]mohawkcollege[dot]ca)
E109E – Electrical Room Work – MAR 23
Facility Services is providing notice of work that will be occurring at the Stoney Creek Campus:
Monday, March 23, 2026 – 07:30 AM to 4:00 PM
Contractor: T.Lloyd Electric Ltd.
Location: Stoney Creek Campus: E109e Electrical Room
Description of Work: The contractor will be working in the main electrical room (E109e).
No power shutdowns, noise or dust is expected.
For further information – please contact:
Jim Davidson – Project Manager – Electrical & Construction
Email: james.davidson10 [at] mohawkcollege.ca (james[dot]davidson10[at]mohawkcollege[dot]ca)
E109E – Electrical Room Work – MAR 26
Facility Services is providing notice of work that will be occurring at the Stoney Creek Campus:
Thursday, March 26th, 2026 – 6:00 AM to 6:00 PM
Contractor: T.Lloyd Electric Ltd.
Location: Stoney Creek Campus: E109E Electrical Room
Description of Work: The contractor will be working in the main electrical room (E109E).
No power shutdowns are required and no noise or dust is expected to be produced by this work.
For further information – please contact:
Jim Davidson – Project Manager – Electrical & Construction
Email: james.davidson10 [at] mohawkcollege.ca (james[dot]davidson10[at]mohawkcollege[dot]ca)
E109E – Electrical Room Work – Power Shutdown – MAR 27
Facility Services is providing notice of work that will be occurring at the Stoney Creek Campus:
Friday, March 27th, 2026 – 5:00 PM to 9:00 PM
Contractor: O’Keefe Electric Ltd.
Location: Stoney Creek Campus: E109E Main Electrical Room
Description of Work: The contractor will complete the electrical tie-in of the welding trailer power feeder to the newly installed 600VAC main switchgear.
This will require that power to the entire building is turned off for approximately two hours beginning at 5:00 PM
For further information – please contact:
Jim Davidson – Project Manager – Electrical & Construction
Email: james.davidson10 [at] mohawkcollege.ca (james[dot]davidson10[at]mohawkcollege[dot]ca)
E-Wing – Outdoor Cage – MAR 23 and MAR 24
Facility Services is providing notice of work that will be occurring at the Stoney Creek Campus:
- Monday, March 23rd, 2026 – 12:00 PM to 8:00 PM
- Tuesday, March 24th, 2026 - 7:00 AM to 6:00 PM
Contractor: O’Keefe Electric Ltd.
Location: Stoney Creek Campus: E-Wing caged Gas Storage Area
Description of Work: The contractor will be completing electrical equipment installations in the gas storage cage of the E-Wing building.
No power shutdowns are required and no noise or dust is expected to be produced by this work.
For further information – please contact:
Jim Davidson – Project Manager – Electrical & Construction
Email: james.davidson10 [at] mohawkcollege.ca (james[dot]davidson10[at]mohawkcollege[dot]ca)
A, D & F-Wing – AODA Upgrades & Misc Work – MAR 25 to MAR 27 *UPDATED NOTICE
Facility Services is providing an updated notice of work that will be occurring at the Stoney Creek Campus:
- Tuesday, March 24th, 2026 – 7:00 AM to 3:00 PM – CANCELLED
- Wednesday, March 25th, 2026 to Friday, March 27th, 2026 – 7:00 AM to 3:00 PM
Contractor: Britt Drywall
Location: Stoney Creek Campus
- A125B – Men’s Change Room
- D-Wing – Corridor at Exit #26 and #27
- F-Wing – Exit #1 Vestibule
Description of Work: The contractor will be installing AODA-compliant washroom accessories, increasing the door undercut at the F-Wing Exit #1 inner vestibule door, and completing drywall patching and painting at Exits #26 and #27.
For further information – please contact:
Jeremy Dowling – Engineering Services Officer
Email: jeremy.dowling [at] mohawkcollege.ca (jeremy[dot]dowling[at]mohawkcollege[dot]ca)
A-Wing – Stairwell "I" Entrance Mat Infill – MAR 29 – 8:00 AM to 12:00 PM
Facility Services is providing notice of work that will be occurring at the Stoney Creek Campus:
- Sunday, March 29th, 2026 – 8:00 AM to 12:00 PM
**Security: Please allow the contractor to work later than noted above, if they require in order to complete their work.**
Contractor: Mario’s Tile and Interiors
Location: Stoney Creek Campus: A-Wing - Stair I
Description of Work: Mario’s Tile and Interiors will be removing the entrance mat and infilling with concrete. The stair will be closed for access during this time.

Figure 1: Stoney Creek Campus - A-Wing Stair I
For further information – please contact:
Jeremy Dowling – Engineering Services Officer
Email: jeremy.dowling [at] mohawkcollege.ca (jeremy[dot]dowling[at]mohawkcollege[dot]ca)
A140 and B103A – Electrical Rooms Work – MAR 24 to MAR 27
Facility Services is providing notice of work that will be occurring at the Stoney Creek Campus:
Tuesday, March 24th, 2026 through Friday, March 27th, 2026, daily from 7:00 AM to 4:00 PM
Contractor: Cahill Electric Ltd
Location: Stoney Creek Campus, A140 & B103A
Description of Work: The contractor will be completing electrical distribution installation work in both electrical rooms.
No power shutdowns are required and no noise or dust is expected to be produced by this work.
For further information – please contact:
Jim Davidson – Project Manager – Construction and Electrical
Email: james.davidson10 [at] mohawkcollege.ca (james[dot]davidson10[at]mohawkcollege[dot]ca)
B106 – Compressed Air Work – MAR 23 to MAR 27
Facility Services is providing notice of work that will be occurring at the Stoney Creek Campus:
- Monday, March 23rd, 2026 – 8:00 AM to 5:00 PM
- Tuesday, March 24th, 2026 – 8:00 AM to 5:00 PM
- Wednesday, March 25th, 2026 – 8:00 AM to 5:00 PM
- Thursday, March 26th, 2026 – 8:00 AM to 5:00 PM
- Friday, March 27th, 2026 – 8:00 AM to 5:00 PM
Contractor: Barton Air Sales and Service
Location: Stoney Creek Campus: Room B106
Description of Work: Compressed air system installation of new equipment. There should be no impact from this work outside of B106.
For further information – please contact:
Patrick Belina – Project Manager – Construction and Renovations
Email: patrick.belina [at] mohawkcollege.ca (patrick[dot]belina[at]mohawkcollege[dot]ca)
A, D, F and G-Wing – AODA Upgrades and Misc Work – MAR 18 - MAR 20
Facility Services is providing notice of work that will be occurring at the Stoney Creek Campus:
Wednesday, March 18th, 2026 to Friday, March 20th, 2026 – 7:00 AM to 3:00 PM
Contractor: Britt Drywall
Location: Stoney Creek Campus
- A125A – Women’s Change Room
- A125B – Men’s Change Room
- A133 – Universal Washroom
- D-Wing – Corridor at Exit #26 and #27
- F-Wing – Exit #1 Vestibule
- G106 – Universal Washroom
- G112 – Men’s Washroom
Description of Work: The contractor will install AODA-compliant washroom accessories, increase the door undercut at the F-Wing Exit #1 inner vestibule door, and complete drywall patching and painting at Exits #26 and #27.
For further information – please contact:
Jeremy Dowling – Engineering Services Officer
Email: jeremy.dowling [at] mohawkcollege.ca (jeremy[dot]dowling[at]mohawkcollege[dot]ca)
B106 – Compressed Air Work – MAR 16 to MAR 20
Facility Services is providing notice of work that will be occurring at the Stoney Creek Campus:
- Monday, March 16th, 2026 – 8:00 AM to 5:00 PM
- Tuesday, March 17th, 2026 – 8:00 AM to 5:00 PM
- Tuesday, March 17th, 2026 – 10:00 PM to 6:00 AM (AFTER-HOURS FOR TIE INS)
- Wednesday, March 18th, 2026 – 8:00 AM to 5:00 PM
- Thursday, March 19th, 2026 – 8:00 AM to 5:00 PM
- Friday, March 20th, 2026 – 8:00 AM to 5:00 PM
Contractor: Barton Air Sales and Service
Location: Stoney Creek Campus: Room B106
Description of Work: Compressed air system installation of new equipment. There should be no impact from this work outside of B106 other than for the tie-in which will occur after-hours.
For further information – please contact:
Jim Davidson – Project Manager – Electrical & Construction
Email: james.davidson10 [at] mohawkcollege.ca (james[dot]davidson10[at]mohawkcollege[dot]ca)
D-Wing – Corridor Wiring Clean-up – MAR 16
Facility Services is providing notice of work that will be occurring at the Stoney Creek Campus:
Monday, March 16th, 2026 – 4:00 PM to 12:00 AM
(Security: They are only estimating the end time, please allow them to continue until they have completed their work)
Contractor: O’Keefe Electrical
Location: Stoney Creek Campus: D-Wing corridor between D102 and D112
Description of Work: The contractor will be cleaning up the last remaining wiring and relocating a clock. The majority of the wiring will be the assistance phones in the corridors and redundant PA system wiring, so there will be alarms to security as they work on each assistance phone location to re-route the wiring.

Figure 1: Stoney Creek Campus – D-Wing Corridor
For further information – please contact:
Jeremy Dowling – Engineering Services Officer
Email: jeremy.dowling [at] mohawkcollege.ca (jeremy[dot]dowling[at]mohawkcollege[dot]ca)
E109 – Carpentry Shop Washrooms – MAR 18
Facility Services is providing notice of work that will be occurring at the Stoney Creek Campus:
Wednesday, March 18th, 2026 – 7:00 AM to 12:30 PM
Contractor: Britt Drywall
Location: Stoney Creek Campus: E-Wing – E109 Carpentry Shop Washrooms
Description of Work: The contractor will be installing door closers, kickplates, push plates, lever handles, hinges and painting the doors and frames.
Please use alternate washrooms during this time.
For further information – please contact:
Jeremy Dowling – Engineering Services Officer
Email: jeremy.dowling [at] mohawkcollege.ca (jeremy[dot]dowling[at]mohawkcollege[dot]ca)
F-Wing – Washroom Duress System – MAR 20
Facility Services is providing notice of work that will be occurring at the Stoney Creek Campus:
Friday, March 20th, 2026 – 8:00 AM to 12:00 PM
Contractor: O’Keefe Electrical
Location: Stoney Creek Campus
- F103 Women’s Washroom
- F105 Men’s Washroom
Description of Work: O’Keefe Electrical will be replacing a relay and re-programming the Duress System in each washroom. The women’s washroom will not be available during this time.
For further information – please contact:
Jeremy Dowling – Engineering Services Officer
Email: jeremy.dowling [at] mohawkcollege.ca (jeremy[dot]dowling[at]mohawkcollege[dot]ca)
A, B, C, D, G Wings & Exterior – Electrical Shutdown Campus wide – MAR 11 & MAR 12
Facility Services is providing notice of work that will be occurring at the Stoney Creek Campus:
- Wednesday, March 11th, 2026 @ 10:00 PM to Thursday March 12th @ 6:00 AM
- Thursday, March 12th, 2026 @ 10:00 PM to Friday March 13th @ 6:00 AM
Contractor: Cahill Electric Ltd
Location: Stoney Creek Campus, A/B/C/D/G Wings and Exterior
Description of Work: All building power will be off for the duration of these shutdowns. The Generator will be operating to maintain some aspects of IT, Security and Lighting. Elevators will not be operating.
Any computers and other office equipment that can be turned off at the end of the day on Wednesday and Thursday would be prudent and appreciated.
For further information – please contact:
Jim Davidson – Project Manager – Construction and Electrical
Email: james.davidson10 [at] mohawkcollege.ca (james[dot]davidson10[at]mohawkcollege[dot]ca)
A, B, C, D, F and G-Wings – Painting – MAR 09
Facility Services is providing notice of work that will be occurring at the Stoney Creek Campus:
Monday, March 9th, 2026 – 4:00 PM to 11:00 PM
Contractor: RV Painting
Location: Stoney Creek Campus:
- A-Wing 2nd Floor corridor
- B-Wing corridor
- C-Wing corridor
- D-Wing corridor
- F-Wing corridor
- G-Wing washrooms
Description of Work: The contractor will be painting around newly installed exit signs and conduits.
For further information – please contact:
Jeremy Dowling – Engineering Services Officer
Email: jeremy.dowling [at] mohawkcollege.ca (jeremy[dot]dowling[at]mohawkcollege[dot]ca)
B106 – Compressed Air Work – MAR 10 to MAR 13
Facility Services is providing notice of work that will be occurring at the Stoney Creek Campus:
- Tuesday, March 10th, 2026 – 8:00 AM to 5:00 PM
- Wednesday, March 11th, 2026 – 8:00 AM to 5:00 PM
- Thursday, March 12th, 2026 – 8:00 AM to 5:00 PM
- Friday, March 13th, 2026 – 8:00 AM to 5:00 PM
Contractor: Barton Air Sales and Service
Location: Stoney Creek Campus: Room B106
Description of Work: Compressed air system installation of new equipment. There should be no impact from this work outside of B106.
For further information – please contact:
Patrick Belina – Project Manager – Construction and Renovations
Email: patrick.belina [at] mohawkcollege.ca (patrick[dot]belina[at]mohawkcollege[dot]ca)
C131 – Window Unit Replacements – MAR 13 & MAR 14
Facility Services is providing notice of work that will be occurring at the Stoney Creek Campus:
- Friday, March 13th, 2026 – 1:00 PM to 7:00 PM
Saturday, March 14th, 2026 – 8:00 AM to 12:00 PM (if required)
Contractor: Alwind Industries
Location: Stoney Creek Campus – Room C131 – Machine Shop
Description of Work: Replacement of fixed window units in C131 Machine Shop with operable window units.
For further information – please contact:
Sloan Alessandro – Project Manager, Construction Engineering Services
Email: sloan.alessandro [at] mohawkcollege.ca (sloan[dot]alessandro[at]mohawkcollege[dot]ca)
E109E – Electrical Room Work – MAR 13 to MAR 15
Facility Services is providing notice of work that will be occurring at the Stoney Creek Campus:
Friday, March 13th, 2026 @ 5:00 PM to Sunday, March 15th, 2026 @ 5:00 PM
Contractor: T.Lloyd Electric Ltd.
Location: Stoney Creek Campus: E-Wing Building (Entire Building)
Description of Work: Modifications to the building’s electrical distribution will be taking place over the weekend. As a result, all power to the entire building will be turned off from Friday at 5:00 PM. The work is scheduled to conclude on Sunday at 5:00 PM at which time, the power will be restored.
Note that building will remain closed and locked during this shutdown.
For further information – please contact:
Jim Davidson – Project Manager – Electrical & Construction
Email: james.davidson10 [at] mohawkcollege.ca (james[dot]davidson10[at]mohawkcollege[dot]ca)
E109 – Mechanical and Electrical Work – FEB 25, MAR 04, MAR 11
Facility Services is providing notice of work that will be occurring at the Stoney Creek Campus:
- Wednesday, February 25th, 2026 – 7:00 AM to 5:00 PM
- Wednesday, March 4th, 2026 – 7:00 AM to 5:00 PM
- Wednesday, March 11th, 2026 – 7:00 AM to 5:00 PM
Contractor: L.J. Barton Mechanical Inc.
Location: Stoney Creek Campus – Room E109
Description of Work: L.J. Barton will complete the following work in E109 on the main floor, the large mezzanine and the roof.
- Remove electrical controls and feeds within the paint booth related to exhaust and MUA unit.
- Remove conduit and junction boxes associated with exhaust and MUA unit back to electrical room.
- Disconnect and cap gas line feeding MUA.
- Disconnect and remove feed to MUA and Exhaust fan on roof.
- Remove branch ducts for small exhaust fan and add round diffuser at fire damper.
Please Note: A scissor lift will be used to complete the work. The work will generate noise.
For health and safety reasons, it is preferred that staff do not access the space on these days.

Figure 1: Stoney Creek - E109 Main Level – Green area indicates place of the work.

Figure 2: Stoney Creek - E109 Mezzanine Level – Green area indicates place of the work.
For further information – please contact:
Natalie Fasan – Manager, Engineering Services & Projects
Email: natalie.fasan [at] mohawkcollege.ca (natalie[dot]fasan[at]mohawkcollege[dot]ca)
E109A – Demolition and Removal – MAR 11 & MAR 12
Facility Services is providing notice of work that will be occurring at the Stoney Creek Campus:
Wednesday, March 11th, 2026 & Thursday, March 12th, 2026 – 7:00 AM to 5:00 PM
Contractor: Torham Construction and Restoration Inc.
Location: Stoney Creek Campus – Room E109A
Description of Work: Demolition and removal of SC - E109A paint booth components, ductwork and related equipment. The demolition materials will be removed through the exit door of E109A facing the parking lot to the north and brought to a waste bin in the parking lot.
The contractor will ensure safe pedestrian walkways and roadways are maintained for the duration of the work when they move materials to the waste bin.
For further information – please contact:
Natalie Fasan – Manager, Engineering Services and Projects
Email: natalie.fasan [at] mohawkcollege.ca (natalie[dot]fasan[at]mohawkcollege[dot]ca)
E-Wing – Electrical Conduit Installation – MAR 09 to MAR 12
Facility Services is providing notice of work that will be occurring at the Stoney Creek Campus:
- Monday, March 9th, 2026 – 5:00 PM to 4:00 AM
- Tuesday, March 10th, 2026 – 5:00 PM to 4:00 AM
- Wednesday, March 11th, 2026 – 5:00 PM to 4:00 AM
- Thursday, March 12th, 2026 – 5:00 PM to 4:00 AM
**ALL WORK IS SCHEDULED TO AVOID ANY CLASSES IN ANY OF THE SHOPS.
Contractor: O’Keefe Electrical
Location: Stoney Creek Campus - E-Wing (Entire Building)
Description of Work: O’Keefe Electrical will be installing electrical conduit below the ceiling deck though all shops.
For further information – please contact:
Jim Davidson – Project Manager – Electrical & Construction
Email: james.davidson10 [at] mohawkcollege.ca (james[dot]davidson10[at]mohawkcollege[dot]ca)
All Elevators – Scheduled Elevator Emergency Phone Line Updates – MAR 05
Facility Services is providing notice of work that will be occurring at the Fennell and Stoney Creek Campus:
Thursday, March 5th, 2026 – 8:30 AM to 4:30 PM
Contractor: Schindler Elevator Corporation
Location: Fennell & Stoney Creek Campus - Elevators
Description of Work: Schindler Elevator technicians will be on site to reprogram the emergency phone lines for all elevators at the Fennell and Stoney Creek Campus. Each elevator will be taken out of service for up to one hour while its phone line is updated to the new emergency contact number.
Teams will work in sequence, with two crews on site to complete all elevators in one day. During this time, the elevator undergoing work will be temporarily unavailable; however, Schindler can provide access if required for students or staff. After reprogramming, each elevator will be functionally tested to ensure correct operation and call routing.
For more information please contact:
Paul Dalgleish – Manager, Buildings, Grounds and Housekeeping Operations
Email: paul.dalgleish [at] mohawkcollege.ca (paul[dot]dalgleish[at]mohawkcollege[dot]ca)
A140 & B102A – New Switchgear and Feeders – MAR 03, MAR 04, Mar 05
Facility Services is providing notice of work that will be occurring at the Fennell Campus:
- Tuesday, March 3rd, 2026 – 1:00 PM to 4:00 PM
- Wednesday, March 4th, 2026 – 7:00 AM to 4:00 PM
- Thursday, March 5th, 2026 – 7:00 AM to 4:00 PM
Contractor: Cahill Electric
Location: Stoney Creek Campus: B103a & A140 Electrical Rooms
Description of Work: Cahill Electric will be continuing the installation work for the new switchgear and feeders.
No impact to the operation of the College, all work will be contained within the two electrical rooms.
For further information – please contact:
Jim Davidson – Project Manager – Electrical & Construction
Email: james.davidson10 [at] mohawkcollege.ca (james[dot]davidson10[at]mohawkcollege[dot]ca)
E109E – Electrical Room Work – MAR 06
Facility Services is providing notice of work that will be occurring at the Stoney Creek Campus:
Friday, March 6th, 2026 – 11:00 AM to 4:00 PM
Contractor: T.Lloyd Electric Ltd.
Location: Stoney Creek Campus: E109e Electrical Room
Description of Work: The contractor will be working in the main electrical room (E109e).
No power shutdowns, noise or dust is expected.
For further information – please contact:
Jim Davidson – Project Manager – Electrical & Construction
Email: james.davidson10 [at] mohawkcollege.ca (james[dot]davidson10[at]mohawkcollege[dot]ca)
E-Wing Electrical Conduit Installation – MAR 02 to MAR 05 – SCHEDULE OUTSIDE OF CLASS TIMES
Facility Services is providing notice of work that will be occurring at the Stoney Creek Campus:
- Monday, March 2nd, 2026 – 12:00 PM to 12:00 AM
- Tuesday, March 3rd, 2026 – 4:00 PM to 12:00 AM
- Wednesday, March 4th, 2026 – 4:00 PM to 12:00 AM
- Thursday, March 5th, 2026 – 3:00 PM to 12:00 AM
**ALL WORK IS SCHEDULED TO AVOID ANY CLASSES IN ANY OF THE SHOPS.
Contractor: O’Keefe Electrical
Location: Stoney Creek Campus - E-Wing (Entire Building)
Description of Work: O’Keefe Electrical will be installing electrical conduit below the ceiling deck though all shops.
For further information – please contact:
Jim Davidson – Project Manager – Electrical & Construction
Email: james.davidson10 [at] mohawkcollege.ca (james[dot]davidson10[at]mohawkcollege[dot]ca)
G103 – Flooring Repair – MAR 02
Facility Services is providing notice of work that will be occurring at the Stoney Creek Campus:
Monday, March 2nd, 2026 – 11:00 AM to 4:00 PM
Contractor: Mattina Mechanical
Location: Stoney Creek Campus: Room G103 – Millwright Lab
Description of Work: Mattina Mechanical will be on site on Monday, March 2nd, to complete a flooring repair in Room G103 around the false floor.
The work is to take place from 11:00 AM to 4:00 PM.
Please note that the concrete may remain wet throughout the evening and overnight.
Please use caution when entering this area, it will be clearly marked with a safety cone.
For more information please contact:
Paul Dalgleish – Manager, Buildings, Grounds and Housekeeping Operations
Email: paul.dalgleish [at] mohawkcollege.ca (paul[dot]dalgleish[at]mohawkcollege[dot]ca)
FEBRUARY 2026
A133, F-Wing and G-Wing – Washrooms Duress System – FEB 25 to FEB 27 – UPDATED NOTICE*
Facility Services is providing an updated notice of work that will be occurring at the Stoney Creek Campus.
Work is currently in progress today, and additional days of work have been scheduled as follows:
Updated Schedule: Wednesday, February 25th, 2026 to Friday, February 27th, 2026 – 8:00 AM to 5:00 PM
Revised Schedule: Tuesday, February 24th, 2026 – 8:00 AM to 5:00 PM
Original Schedule: Monday, February 23rd, 2026 – 8:00 AM to 5:00 PM
Contractor: O’Keefe Electrical
Location: Stoney Creek Campus
- A133 Universal Washroom
- F103 Women’s Washroom
- F105 Men’s Washroom
- G106 Universal Washroom (new)
- G108 Women’s Washroom (new)
- G112 Men’s Washroom (new)
Description of Work: O’Keefe Electrical will be upgrading/installing a Duress System in each washroom. The washrooms will be out of order during this time.
For further information – please contact:
Jeremy Dowling – Engineering Services Officer
Email: jeremy.dowling [at] mohawkcollege.ca (jeremy[dot]dowling[at]mohawkcollege[dot]ca)
B103A – Electrical Room Work – FEB 23 to FEB 25
Facility Services is providing notice of work that will be occurring at the Stoney Creek Campus:
Monday, February 23rd, 2026 to Wednesday February 25th – 7:00 AM to 3:00 PM
Contractor: Cahill Electric Ltd.
Location: Stoney Creek Campus: B-Wing (B103A) & Parking Area Beside Shipping & Receiving
Description of Work: The contractor will be working in electrical room B103A.
As part of that work, a portable generator will be operating outside of the shipping and receiving area on Tuesday from 6:30am to 6:00pm. It will be positioned to respect clearance requirements from air intakes. Conductors will be routed from the portable generator and into B103a electrical room.
For further information – please contact:
Jim Davidson – Project Manager – Electrical & Construction
Email: james.davidson10 [at] mohawkcollege.ca (james[dot]davidson10[at]mohawkcollege[dot]ca)
E109A – Fire Suppression System – FEB 24
Facility Services is providing an updated notice of work that will be occurring at the Stoney Creek Campus:
Tuesday, February 24th, 2026 – 7:30 AM to 3:00 PM
Contractor: EPI Fire Protection Inc.
Location: Stoney Creek Campus – Room E109A
Description of Work: Removal of fire suppression system, devices and associated electrical components from the Paint Booth Room E109A.

Figure 1: Stoney Creek Campus - E109A Area of Work
For further information – please contact:
Natalie Fasan – Manager, Engineering Services & Projects
Email: natalie.fasan [at] mohawkcollege.ca (natalie[dot]fasan[at]mohawkcollege[dot]ca)
A122 – Wall Painting – FEB 27
Facility Services is providing notice of work that will be occurring at the Fennell Campus:
Friday, February 27th, 2026 – 6:00 PM to 10:00 PM
Contractor: Footage Inc.
Location: Stoney Creek Campus – Room A122
Description of Work: This work involves the preparation and repainting of the wall area where the former sound booth was removed in Room A122 at the Stoney Creek Library.
For further information – please contact:
Terry Walker – Locksmith – Team Lead – Building, Grounds & Housekeeping
Email: terry.walker1 [at] mohawkcollege.ca (terry[dot]walker1[at]mohawkcollege[dot]ca)
A133 and F-Wing – Washrooms Duress System – FEB 19 to FEB 20
Facility Services is providing an updated notice of work that will be occurring at the Stoney Creek Campus:
Revised Schedule: Thursday, February 19th, 2026 to Friday, February 20th, 2026 – 8:00 AM to 4:00 PM
Original Schedule: Friday, February 13th, 2026 – 8:00 AM to 4:00 PM
Contractor: O’Keefe Electrical
Location: Stoney Creek Campus
- A133 Universal Washroom
- F103 Women’s Washroom
- F105 Men’s Washroom
- G106 Universal Washroom (new)
- G108 Women’s Washroom (new)
- G112 Men’s Washroom (new)
Description of Work: O’Keefe Electrical will be upgrading/installing a Duress System in each washroom. The washrooms will be out of order during this time.
For further information – please contact:
Jeremy Dowling – Engineering Services Officer
Email: jeremy.dowling [at] mohawkcollege.ca (jeremy[dot]dowling[at]mohawkcollege[dot]ca)
A, B, C and D-Wing(s) – Exit Light Replacements – FEB 20
Facility Services is providing notice of work that will be occurring at the Stoney Creek Campus:
Friday, February 20th, 2026 – 8:00 AM to 5:00 PM
Contractor: O’Keefe Electrical
Location: Stoney Creek Campus
- A-Wing Corridors, Stairwells both levels and A126a
- B-Wing Corridors, Stairwells both levels, B106 and B120
- C-Wing Corridors, C130 and C131
- D-Wing Corridors
Description of Work: O’Keefe Electrical will be replacing existing exit lights with new ones. They will work around class schedules.
All breakers impacted are labelled as Exit Lights.
Some moderate noise may occur at times, but will be kept to a minimum.
For further information – please contact:
Jeremy Dowling – Engineering Services Officer
Email: jeremy.dowling [at] mohawkcollege.ca (jeremy[dot]dowling[at]mohawkcollege[dot]ca)
E109A – Fire Suppression System – FEB 18
Facility Services is providing notice of work that will be occurring at the Stoney Creek Campus:
The work scheduled for Wednesday, February 18th, 2026 has been cancelled.
A new date and time will be communicated once rescheduled.
Contractor: EPI Fire Protection Inc.
Location: Stoney Creek Campus – Room E109A
Description of Work: Removal of fire suppression system, devices and associated electrical components from the Paint Booth Room E109A.

Figure 1: Stoney Creek Campus - E109A Area of Work
For further information – please contact:
Natalie Fasan – Manager, Engineering Services & Projects
Email: natalie.fasan [at] mohawkcollege.ca (natalie[dot]fasan[at]mohawkcollege[dot]ca)
A133 and F-Wing – Washrooms Duress System Installation – FEB 13
Facility Services is providing updated notice of work that will be occurring at the Stoney Creek Campus:
Friday, February 13th, 2026 – 8:00 AM to 4:00 PM
Contractor: O’Keefe Electrical
Location: Stoney Creek Campus
- A133 Universal Washroom
- F103 Women’s Washroom
- F105 Men’s Washroom
Description of Work: O’Keefe Electrical will be upgrading/installing a Duress System in each washroom. The washrooms will be out of order during this time.
For further information – please contact:
Jeremy Dowling – Engineering Services Officer
Email: jeremy.dowling [at] mohawkcollege.ca (jeremy[dot]dowling[at]mohawkcollege[dot]ca)
A, B, C and D-Wing(s) – Exit Light Replacements – FEB 13
Facility Services is providing an updated notice of work that will be occurring at the Stoney Creek Campus:
Friday, February 13th, 2026 – 8:00 AM to 5:00 PM
Contractor: O’Keefe Electrical
Location: Stoney Creek Campus
- A-Wing Corridors, Stairwells both levels and A126a
- B-Wing Corridors, Stairwells both levels, B106 and B120
- C-Wing Corridors, C130 and C131
- D-Wing Corridors
Description of Work: O’Keefe Electrical will be replacing existing exit lights with new ones. They will work around class schedules.
All breakers impacted are labelled as Exit Lights.
Some moderate noise may occur at times, but will be kept to a minimum.
For further information – please contact:
Jeremy Dowling – Engineering Services Officer
Email: jeremy.dowling [at] mohawkcollege.ca (jeremy[dot]dowling[at]mohawkcollege[dot]ca)
A140 & B103A – Electrical Room Work – FEB 09 to FEB 13
Facility Services is providing notice of work that will be occurring at the Stoney Creek Campus:
Monday, February 9th, 2026 – Friday, February 13th, 2026 from 7:00 AM to 4:00 PM daily
Contractor: Cahill Electric Ltd.
Location: Stoney Creek Campus: A-Wing (A140), B-Wing (B103a)
Description of Work: The contractor will be working in A140 electrical room and B103a electrical room. No public-facing work is planned at this time.
There may be minor intermittent noise (drilling / hammering). No power interruptions are anticipated.
For further information – please contact:
Jim Davidson – Project Manager – Electrical & Construction
Email: james.davidson10 [at] mohawkcollege.ca (james[dot]davidson10[at]mohawkcollege[dot]ca)
A, B, C and D-Wing(s) – Exit Light Replacements – FEB 11
Facility Services is providing notice of work that will be occurring at the Stoney Creek Campus:
Wednesday, February 11th, 2026 – 8:00 AM to 5:00 PM
Contractor: O’Keefe Electrical
Location: Stoney Creek Campus
- A-Wing Corridors, Stairwells both levels and A126a
- B-Wing Corridors, Stairwells both levels, B106 and B120
- C-Wing Corridors, C130 and C131
- D-Wing Corridors
Description of Work: O’Keefe Electrical will be replacing existing exit lights with new ones. They will work around class schedules.
All breakers impacted are labelled as Exit Lights. Some moderate noise may occur at times, but will be kept to a minimum.
For further information – please contact:
Jeremy Dowling – Engineering Services Officer
Email: jeremy.dowling [at] mohawkcollege.ca (jeremy[dot]dowling[at]mohawkcollege[dot]ca)
C-Wing – Corridor Painting – FEB 10
Facility Services is providing notice of work that will be occurring at the Stoney Creek Campus:
Tuesday, February 10th, 2026 – 4:00 PM to 11:00 PM
Contractor: RV Painting
Location: Stoney Creek Campus: C-Wing Corridor between C115 to C120
Description of Work: The contractor will be painting corridor walls and doors/frames in C-Wing.
For further information – please contact:
Jeremy Dowling – Engineering Services Officer
Email: jeremy.dowling [at] mohawkcollege.ca (jeremy[dot]dowling[at]mohawkcollege[dot]ca)
B103A – Electrical Room Work – FEB 11
Facility Services is providing notice of work that will be occurring at the Stoney Creek Campus:
Wednesday, February 11th, 2026 – 7:00 AM to 1:00 PM
Contractor: Demik Construction (sub-contactor to) Cahill Electric Ltd.
Location: Stoney Creek Campus: B-Wing (B103A) & Parking Area Beside Shipping & Receiving
Description of Work: The contractor will be working in the electrical room (Room B103A). No public-facing work is planned at this time.
A cement truck will be on-campus from approximately 7:30 AM till 12:00 PM. It will be parking in the access lane beside shipping and receiving.
For further information – please contact:
Jim Davidson – Project Manager – Electrical & Construction
Email: james.davidson10 [at] mohawkcollege.ca (james[dot]davidson10[at]mohawkcollege[dot]ca)
E-Wing – Full Building Power Shutdown – FEB 14
Facility Services is providing notice of work that will be occurring at the Stoney Creek Campus:
Saturday, February 14th, 2025 – 7:00 AM to 3:30 PM
IMPORTANT: All power to the entire building will be OFF during this work. Please plan accordingly.
Contractor: T.Lloyd Electric Ltd. & Alectra Utilities
Location: Stoney Creek Campus: E-Wing - E109E & Outside of Building at Hydro Meter
Description of Work: The contractor (T.Lloyd Electric) and Alectra Utilities will be performing electrical renovations to the main hydro meter.
For further information – please contact:
Jim Davidson – Project Manager – Electrical & Construction
Email: james.davidson10 [at] mohawkcollege.ca (james[dot]davidson10[at]mohawkcollege[dot]ca)
C-Wing – Corridor Painting – FEB 09
Facility Services is providing notice of work that will be occurring at the Stoney Creek Campus:
Monday, February 9th, 2026 – 4:00 PM to 11:00 PM
Contractor: RV Painting
Location: Stoney Creek Campus: C-Wing Corridor between C115 to C120
Description of Work: The contractor will be painting corridor walls and doors/frames in C-Wing.
For further information – please contact:
Jeremy Dowling – Engineering Services Officer
Email: jeremy.dowling [at] mohawkcollege.ca (jeremy[dot]dowling[at]mohawkcollege[dot]ca)
C-Wing and D-Wing – Corridor Painting – FEB 05
Facility Services is providing notice of work that will be occurring at the Stoney Creek Campus:
Thursday, February 5th, 2026 – 4:00 PM to 11:00 PM
Contractor: RV Painting
Location: Stoney Creek Campus:
- C-Wing Corridor between C115 to C120
- D-Wing Corridor between D101 to D104
Description of Work: The contractor will be painting corridor walls and doors/frames in C-Wing and D-Wing.
For further information – please contact:
Jeremy Dowling – Engineering Services Officer
Email: jeremy.dowling [at] mohawkcollege.ca (jeremy[dot]dowling[at]mohawkcollege[dot]ca)
D-Wing – Pipe Insulation Replacement and Asbestos Abatement Work – FEB 05 & FEB 08
Facility Services is providing notice of work that will be occurring at the Stoney Creek Campus:
- Thursday, February 5th, 2026 – 4:00 PM to 11:00 PM
- Sunday, February 8th, 2026 – 7:00 AM to 3:30 PM
Security: Please let the contractor work later if they need to complete their work.
Contractor: McGowan Insulations
Location: Stoney Creek Campus: D-Wing between D102 and D112
Description of Work: The contractor will be replacing damaged pipe insulation, installing new pipe insulation, asbestos abatement of elbows and PVC wrapping piping.

Figure 1: Stoney Creek Campus – D-Wing Corridor
For further information – please contact:
Jeremy Dowling – Engineering Services Officer
Email: jeremy.dowling [at] mohawkcollege.ca (jeremy[dot]dowling[at]mohawkcollege[dot]ca)
Institute of Applied Health Sciences (IAHS)
Archived work notices are being prepared and will be available soon
Centre for Aviation Technology at Hamilton International Airport (HA)
Front and Rear Stairwells – Tile and Nosing Replacement – FEB 28
Facility Services is providing notice of work that will be occurring at the Centre for Aviation Technology at Hamilton International Airport (HA):
Saturday, February 28th, 2026 – 8:00 AM to 5:00 PM
Contractor: Mario's Tile & Interiors
Location: Centre for Aviation Technology at Hamilton International Airport (HA) – Front and Rear Stairwells
Description of Work: The contractor will replace damaged floor tile and stair nosing assemblies in both the front and rear stairwells.
For further information – please contact:
Terry Walker – Locksmith – Team Lead – Building, Grounds & Housekeeping
Email: terry.walker1 [at] mohawkcollege.ca (terry[dot]walker1[at]mohawkcollege[dot]ca)